Rare freehold shop with planning consent for three flats — auction sale, planning available.
Freehold Edwardian commercial building with prominent shopfront
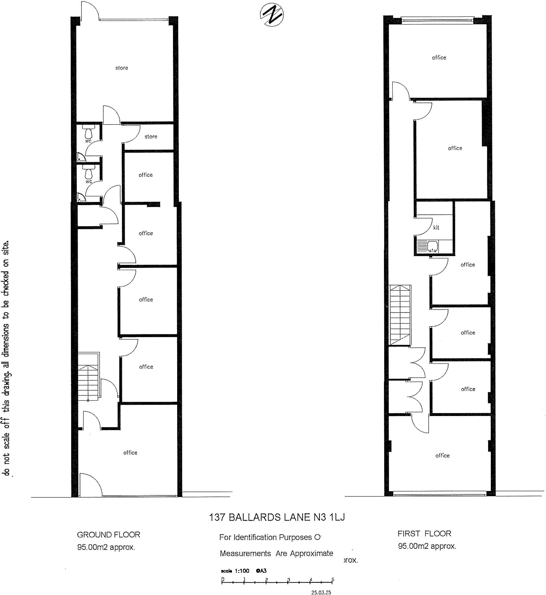
A substantial Edwardian commercial building on Ballards Lane, offered freehold and presented as an investors’ opportunity. The ground floor provides modern retail/office space with a prominent shopfront and rear access; the upper floors total circa 1,945 sq ft (2045 sq ft overall) and come with detailed planning permission to create three residential units (two one‑bed/studio conversions and a new two‑bed, two‑bath unit with front and rear roof terraces). Plans are available for review.
The property will be sold at public auction and is recorded with a public notice/repossession flag — buyers should note the sale method and complete legal and financial checks in advance. Services, fixtures and fittings have not been tested; the buyer must verify utility status, condition and tenure with their solicitor or surveyor. There is no flooding risk, and the site sits in an affluent, well‑connected Finchley parade with excellent mobile and fast broadband speeds.
This location suits investors or developers seeking a mixed commercial/residential income stream close to local shops, transport and schools. Key negatives include a high local crime statistic, a compact plot footprint, and likely refurbishment or fit‑out costs to complete the approved conversions and to confirm building services. The property suits a buyer prepared to proceed at auction and to manage conversion works to realise rental or sales value.
5 bedroom terraced house for sale in High Road, London, N2 — £1,150,000 • 5 bed • 1 bath • 3856 ft²
3 bedroom semi-detached house for sale in High Road, North Finchley, N12 — £850,000 • 3 bed • 2 bath • 1846 ft²
2 bedroom flat for sale in Ballards Lane, London, N3 — £300,000 • 2 bed • 1 bath • 789 ft²
Residential development for sale in 93 High Road, East Finchley, London, N2 8AG, N2 — £1,150,000 • 1 bed • 1 bath • 2560 ft²
Land for sale in High Road, North Finchley, N12 — £750,000 • 1 bed • 1 bath • 2086 ft²
Commercial development for sale in High Road, London, N2 — £1,150,000 • 5 bed • 1 bath • 3856 ft²






































