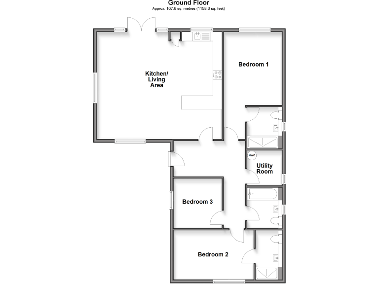
**Standout Features:**
- Newly renovated modern detached bungalow
- Located in a quiet cul-de-sac with gated entrance
- 3 spacious bedrooms, 2 with en-suites
- Large open-plan kitchen/living area with built-in appliances
- Off-street parking with a split driveway for multiple cars
- Efficient air conditioning and air source heat pump
- Generous rear garden, ideal for entertaining or relaxation
- Chain-free for a quicker move-in
**Potential Concerns:**
- Average square footage of 837 sqft may limit some buyers
- Located in an area categorized as deprived, which may impact long-term value
Discover the charm of this newly renovated detached bungalow, the largest in its serene cul-de-sac. This immaculate property features three spacious bedrooms, including two with en-suite shower rooms, making it perfect for families or investors seeking rental potential. The modern open-plan kitchen and living area create a welcoming space complemented by bright patio doors that open to a generous rear garden. Enjoy comfort year-round with air conditioning and the energy-efficient air source heat pump.
With off-street parking for multiple vehicles, this home combines convenience with style. Its unique position in a quiet enclave offers peace and security, ideal for first-time buyers or those looking to downsize. Don't miss out on this exceptional opportunity—schedule your viewing today and envision the lifestyle that awaits you!
3 bedroom detached bungalow for sale in Willow Close, Chequers Road, Minster On Sea, Sheerness, Kent, ME12 — £475,000 • 3 bed • 2 bath • 794 ft²
3 bedroom detached bungalow for sale in Drake Ave, Minster on sea, ME12 3SA, ME12 — £375,000 • 3 bed • 2 bath • 937 ft²
3 bedroom bungalow for sale in Willow Close, Chequers Road, Minster on Sea, Sheerness, ME12 — £450,000 • 3 bed • 2 bath • 868 ft²
3 bedroom bungalow for sale in Willow Close, Chequers Road, Minster on Sea, Sheerness, ME12 — £450,000 • 3 bed • 2 bath • 861 ft²
3 bedroom detached bungalow for sale in Harps Avenue, Minster On Sea, Kent, ME12 — £350,000 • 3 bed • 1 bath • 980 ft²
2 bedroom detached bungalow for sale in Orchard Grove, Minster-On-Sea, Sheerness, Kent, ME12 — £375,000 • 2 bed • 2 bath • 1088 ft²


























































