**Standout Features:**
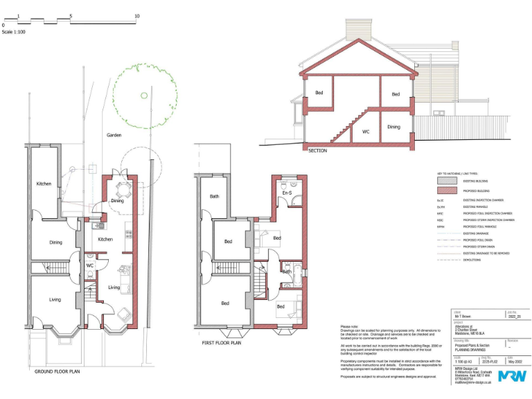
- **Approved Planning**: Planning permission granted for a two-bedroom end-of-terrace house (ref: 22/505414/FULL).
- **Prime Location**: Close to Maidstone town center, schools, and amenities.
- **Transportation**: Excellent transport links with Maidstone West Train Station and M20 access nearby.
- **Plot Size**: Approximately 0.04 acres with solid brick construction typical of Victorian architecture.
**Notable Concerns:**
- **Condition**: The property requires exterior maintenance and may have damp issues due to age; solid brick walls lack insulation.
- **Renovation Needs**: Potential for modernization and expansion exists but will require investment.
Discover your next investment opportunity in this conveniently located plot of land in Maidstone. With approved planning in place for a two-bedroom end-of-terrace home, this property is perfect for first-time buyers or investors looking to capitalize on the demand for housing in the area. Enjoy easy access to quality schools, local amenities including a Tesco Express and various eateries, and fast transport links to London and the coast.
While the property bears the charming hallmarks of its Victorian roots, it presents an exciting chance for renovation that can enhance both comfort and property value. With some work needed for both the exterior and interior, you’ll have the chance to create your dream home tailored to your taste. Properties like this are rare—act now to seize the opportunity before it’s gone!
Land for sale in Site At The Junction Of Ashford Road And Square Hill, Maidstone, Kent, ME14 5BH, ME14 — £600,000 • 1 bed • 1 bath • 5227 ft²
2 bedroom terraced house for sale in Wheeler Street, Maidstone, ME14 — £250,000 • 2 bed • 1 bath • 1248 ft²
4 bedroom terraced house for sale in Marsham Street, Maidstone, ME14 — £275,000 • 4 bed • 1 bath • 1454 ft²
2 bedroom terraced house for sale in Postley Road, Maidstone, Kent, ME15 — £259,000 • 2 bed • 1 bath • 1057 ft²
Plot for sale in Loose Road, Maidstone, ME15 — £795,000 • 3 bed • 2 bath • 5445 ft²
6 bedroom terraced house for sale in Randall Street, Maidstone, Kent, ME14 — £400,000 • 6 bed • 2 bath • 1281 ft²






























