Energy-efficient new-build bungalow with garage and large plot, ideal for easy single-level living.
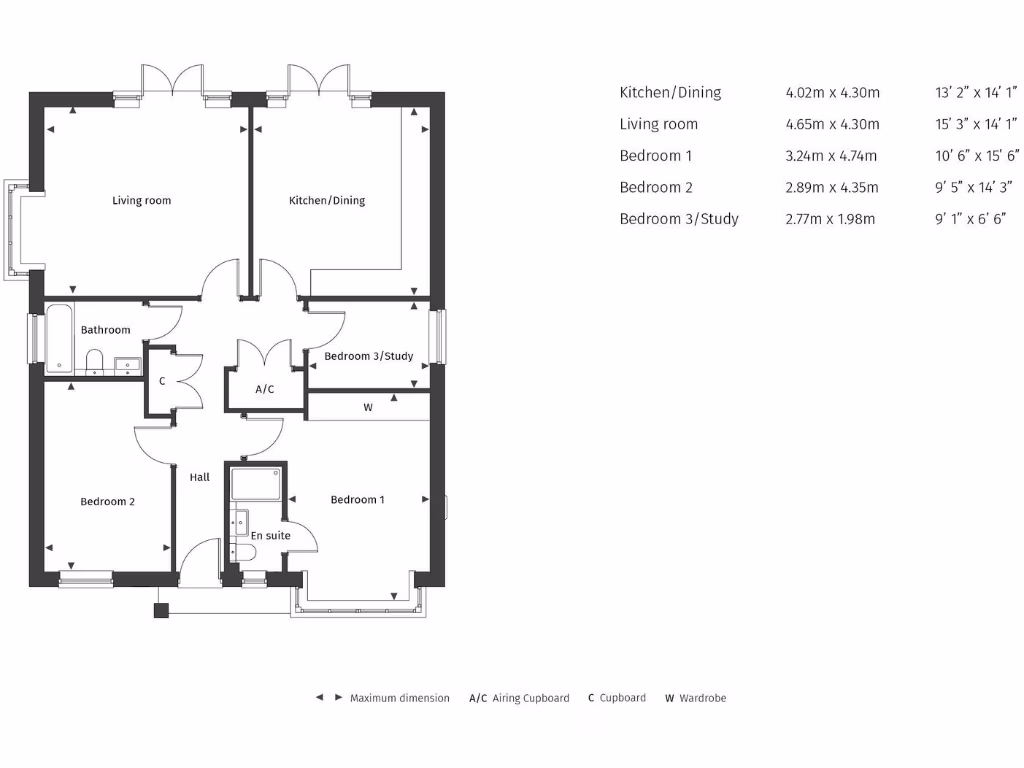
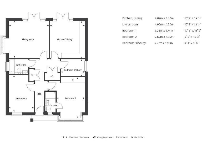
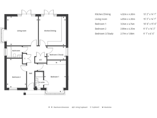
Three-bedroom detached bungalow with 1,037 sqft accommodation
Air source heat pump provides efficient whole-house heating
Large plot with private garden, garage and off-road parking
Master bedroom with ensuite and built-in wardrobes
Open-plan kitchen/diner ideal for family living and entertaining
Third bedroom is small — better as study or nursery
Area has slow broadband despite excellent mobile signal
New build Freehold; services and appliances untested (survey advised)
This brand-new three-bedroom detached bungalow on Ringwood Road offers single-storey living with contemporary finishes and an energy-efficient air source heat pump. At about 1,037 sqft the layout balances a generous living room and open-plan kitchen/diner with practical storage and a fitted ensuite to the master bedroom.
The property sits on a large plot with a garage and off-road parking, private garden and neat landscaping — well suited to downsizers who want low-maintenance outside space or families seeking one-level living. Built to a modern specification, it includes built-in wardrobes in the master and multiple storage cupboards throughout.
Buyers should note the third bedroom is compact and may be better suited as a study or nursery. Broadband speeds in the area are reported slow despite excellent mobile signal, which may be relevant for home-working. Services and appliances have not been independently tested, so a buyer survey is recommended.
Part-exchange options are available for eligible purchasers, and the property is sold Freehold with no flood risk and a low-crime, affluent neighbourhood setting. Overall this is a practical, energy-conscious bungalow offering simple, modern single-level living with scope to personalise finishes.
3 bedroom detached bungalow for sale in Ringwood Road, Alderholt, Fordingbridge, SP6 — £565,000 • 3 bed • 2 bath • 1118 ft²
3 bedroom detached bungalow for sale in Ringwood Road, Alderholt, Fordingbridge, SP6 — £665,000 • 3 bed • 2 bath • 886 ft²
3 bedroom detached house for sale in Ringwood Road, Alderholt, Fordingbridge, SP6 — £415,000 • 3 bed • 2 bath • 590 ft²
3 bedroom bungalow for sale in Woodlinken Drive, Verwood, BH31 — £575,000 • 3 bed • 2 bath • 1310 ft²
3 bedroom detached house for sale in Ringwood Road, Alderholt, Fordingbridge, SP6 — £415,000 • 3 bed • 2 bath • 874 ft²
3 bedroom semi-detached house for sale in Ringwood Road, Alderholt, Fordingbridge, SP6 — £395,000 • 3 bed • 2 bath • 874 ft²


















































