Large extended 4-bed family home with garden room and off-street parking..
Heavily extended four-bedroom semi-detached family home, circa 2,027 sq ft
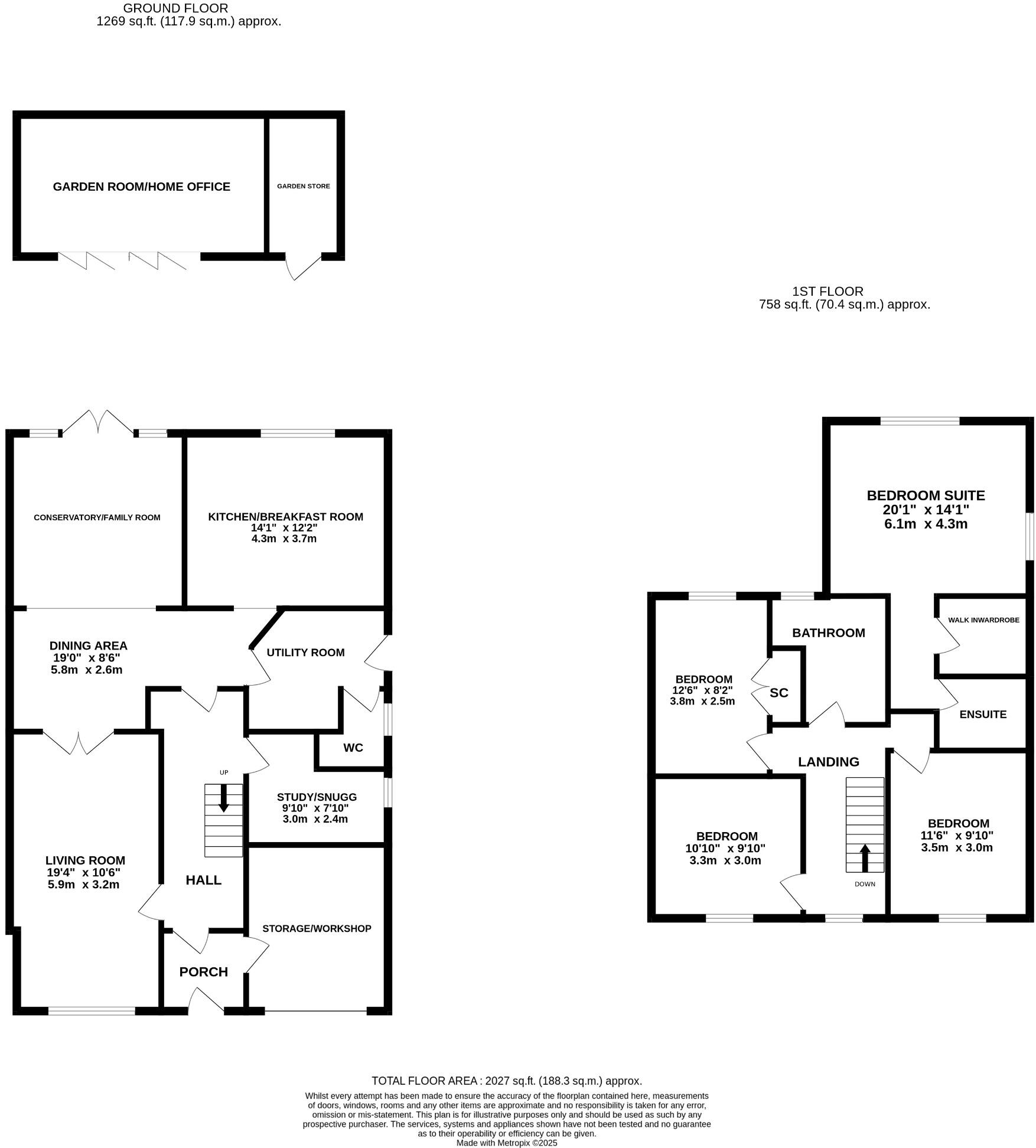
This extensively extended four-bedroom semi-detached house offers spacious family living across circa 2,027 sq ft. Ground floor layout includes a bright living room, a fitted kitchen/breakfast area leading to a dining space and conservatory/family room, plus a handy utility and refitted cloakroom. A separate study/snug and a garden room/home office add flexible workspace for home-working needs.
The principal bedroom benefits from a walk-in wardrobe and a refitted ensuite; three further bedrooms and a refitted four-piece family bathroom complete the first floor. The enclosed rear garden with patio provides private outdoor space, while off-street parking and a gravel driveway serve visiting family and guests. The property is offered with no onward chain for a quicker move.
Practical points to note: there was a flood in 2021 caused by a blocked drain — the drain has been cleared and no further incidents have been reported, but buyers should confirm any warranties or insurance implications. The property was built 1950–1966 with cavity walls (insulation assumed absent); buyers may wish to consider loft/wall insulation upgrades to improve energy efficiency. Council tax is above average for the area.
Set in the pleasant village of Barton‑Le‑Clay, the house is about 0.6 miles from a local school and roughly 4.0 miles from Harlington station, making it well suited to families who value local schooling and commuter links. Overall this is a large, versatile family home with ready-to-use living spaces and clear potential for energy-performance improvements.
4 bedroom semi-detached house for sale in Norman Road, Barton-Le-Clay. MK45 4QA, MK45 — £485,000 • 4 bed • 2 bath • 919 ft²
4 bedroom detached house for sale in Grange Road, Barton-Le-Clay, MK45 4RE, MK45 — £525,000 • 4 bed • 2 bath • 1025 ft²
4 bedroom detached house for sale in Grays Close, Barton-Le-Clay, MK45 4PH, MK45 — £530,000 • 4 bed • 1 bath • 1515 ft²
3 bedroom semi-detached house for sale in Norman Road, Barton-Le-Clay, MK45 4PX, MK45 — £430,000 • 3 bed • 2 bath • 1340 ft²
4 bedroom semi-detached house for sale in Norman Road, Barton-le-Clay, MK45 — £450,000 • 4 bed • 2 bath • 1281 ft²
3 bedroom semi-detached house for sale in Osborn Road, Barton-Le-Clay, MK45 4NY, MK45 — £390,000 • 3 bed • 1 bath • 745 ft²


































































