Exclusive over‑45s gated site with furnished interiors and rural outlook.
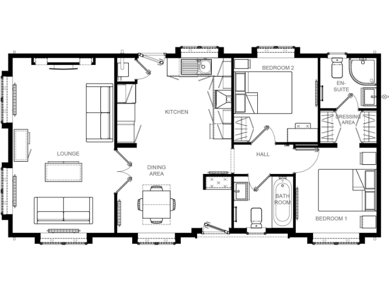
- Brand new, fully furnished 42'x20' Omar Image model
- Two bedrooms; master bedroom with en‑suite
- Decked patio and gated private development
- Exclusive over‑45s community; pet friendly
- Site fee £160/month; ground rent £1,920/year
- Sold as virtual freehold; not mortgageable — seek legal advice
- Excellent mobile signal; broadband speeds slow
- Countryside location; nearest supermarket ~10.6 miles
A bright, newly built 42'x20' park home finished to a high specification, offered fully furnished and ready to move into. The single‑storey layout includes an open lounge and dining area, a fitted kitchen with integrated appliances, two bedrooms (master with en‑suite) and a decked patio for outdoor sitting. The gated residential development sits in rural Dumfriesshire, under 10 miles from quiet beaches and within easy reach of village amenities.
This property suits over‑45s seeking a low‑maintenance, countryside base for downsizing or a quieter lifestyle. It is pet friendly, in a private development with excellent mobile signal and pleasant surrounding scenery. Council tax is low and the home is energy efficient by design.
Buyers should be aware this is sold as a park home on a ‘virtual freehold’ basis: you purchase the dwelling but lease the land in perpetuity. These homes are not mortgageable; legal advice is recommended. Ongoing costs include a site fee of £160 per month (reviewed annually) and a stated ground rent of £1,920 per year. Broadband speeds are slow in this rural location, and the wider area records high deprivation despite being scenically attractive.
2 bedroom park home for sale in Kirkgunzeon, Scotland, DG2 — £160,000 • 2 bed • 2 bath • 800 ft²
2 bedroom park home for sale in Kirkgunzeon, Dumfries, DG2 — £69,000 • 2 bed • 1 bath • 501 ft²
2 bedroom lodge for sale in Dumfriesshire, Scotland, DG2 — £149,000 • 2 bed • 2 bath • 800 ft²
2 bedroom lodge for sale in Dumfriesshire, Scotland, DG2 — £69,000 • 2 bed • 2 bath • 468 ft²
2 bedroom detached house for sale in Newbridge Country Park, Glasgow Road, Dumfries, Dumfries and Galloway, DG2 — £149,000 • 2 bed • 1 bath • 800 ft²
2 bedroom detached house for sale in Newbridge Country Park, Glasgow Road, Dumfries, Dumfries and Galloway, DG2 — £105,000 • 2 bed • 1 bath


























































































