Low-maintenance layout near schools and good broadband.
Three-storey modern townhouse, approx. 1,152 sq ft
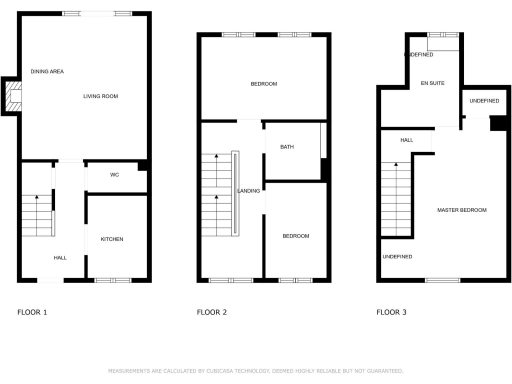
This modern three-storey townhouse on Ursuline Way offers practical, low-maintenance living across about 1,152 sq ft. The layout includes an open-plan ground floor with patio doors, two double bedrooms, a large single, and a third-floor master with en-suite — a flexible arrangement well suited to first-time buyers or a small family.
Outside is allocated and visitor parking directly to the front and a modest, low-maintenance rear garden — easy care for busy households. The property was constructed around 2007–2011, has double glazing and mains gas central heating, and sits in an achieving neighbourhood with good local schools and fast broadband.
Tenure is leasehold with 980 years remaining, a small annual ground rent (£200) and a below-average service charge (£180 per year). Council Tax is in Band B (Cheshire East). No flooding risk is indicated and the home appears well maintained externally, though internal decorative condition is not specified and viewers should inspect heating, electrics and finishes in person.
Suitable for first-time buyers seeking a modern, low-upkeep home or buy-to-let investors targeting steady local demand. Viewings are recommended to assess internal condition, layout suitability and any updating needs.
3 bedroom town house for sale in Gresty Road, Crewe, CW2 — £169,950 • 3 bed • 1 bath • 827 ft²
3 bedroom terraced house for sale in Ursuline Way, Crewe, CW2 — £260,000 • 3 bed • 2 bath • 1001 ft²
4 bedroom detached house for sale in Ursuline Way, Crewe, CW2 — £375,000 • 4 bed • 3 bath • 1390 ft²
3 bedroom end of terrace house for sale in Wilding Drive, Crewe, CW1 — £185,000 • 3 bed • 1 bath • 581 ft²
3 bedroom town house for sale in Ashbank Place, Crewe, CW1 — £180,000 • 3 bed • 2 bath • 869 ft²
3 bedroom town house for sale in Jackson Avenue, Nantwich, CW5 — £249,000 • 3 bed • 3 bath • 828 ft²






































































