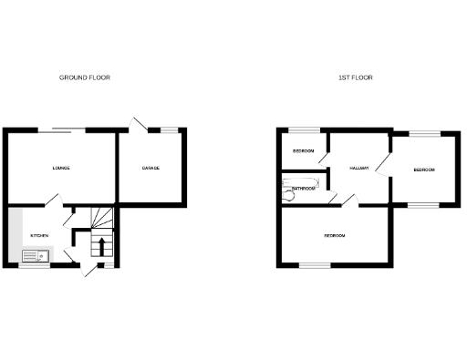
Three double bedrooms with traditional first-floor layout
Chain-free sale; freehold tenure
Decent rear garden, driveway and single garage
915 sq ft; average-sized family accommodation
Dated interior—modernisation recommended to unlock value
EPC: D; single family bathroom only
Double glazing fitted (installation date unknown)
Local area: good schools, higher-than-average crime rate
A three-bedroom semi-detached home in Glenfield offered chain-free, ideal for growing families seeking straightforward space and parking. The accommodation includes a lounge with sliding doors to the patio, a fitted kitchen, three double bedrooms and a family bathroom. Outside there is a decent garden, driveway and a single garage with Worcester boiler.
The house sits in a popular suburban pocket close to local shops, a large supermarket, regular bus routes to Leicester and several well-regarded schools including Glenfield Primary. The layout is traditional and practical, with gas central heating, double glazing (installation date unknown) and a compact but manageable footprint of around 915 sq ft.
The property does require updating: interior décor is dated and the living space would benefit from modernisation to maximise comfort and value. EPC rating D and a single bathroom may be limiting for larger households. Prospective buyers should note the local crime level is higher than average and are advised to carry out their own checks and professional inspections where needed.
Offered freehold and chain-free, this house suits a buyer seeking a straightforward purchase with scope to refurbish and add value, or a family wanting an accessible, well-located home with parking and garden space.















































































































