Chain-free village home with large south-west facing garden and garage.
- Three bedrooms including flexible ground-floor family room or bedroom
- 76' rear garden, garage and off-street parking
- Modern kitchen fitted in 2019; integrated appliances
- Gas combi boiler and double glazing throughout
- Total internal area approx 896 sq ft; rooms are generally small
- Single bathroom only; could limit larger family use
- Potential to extend, subject to planning permissions
- Council tax band above average for the area
A charming three-bedroom semi-detached cottage in Penn, offered chain-free and ready to enjoy. The house blends period features — leaded windows, brick fireplace and a flint bread-oven in the dining room — with practical modern upgrades including a 2019-fitted kitchen, double glazing and a gas combi boiler.
The layout suits a small family: two double bedrooms upstairs and a flexible ground-floor room currently used as a family room or third bedroom. Living spaces are cosy rather than expansive, but the efficient footprint is complemented by a long 76' rear garden, garage and off-street parking. There is scope to increase living space by extending, subject to the usual planning permissions.
Buyers should note the property’s limitations: total accommodation is around 896 sq ft with generally small rooms and a single family bathroom. Council tax is above average for the area. These factors, combined with the house’s character, make it ideal for buyers wanting a period home to personalise rather than those seeking a large turnkey family house.
Set in a very affluent, low-crime area with good nearby schools and fast broadband, this freehold cottage will particularly appeal to families or buyers seeking a characterful home with garden space and extension potential.
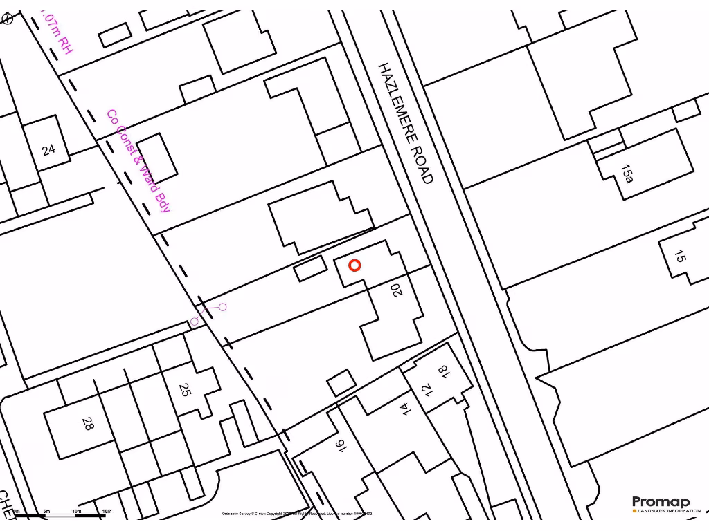
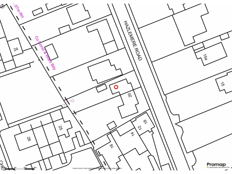
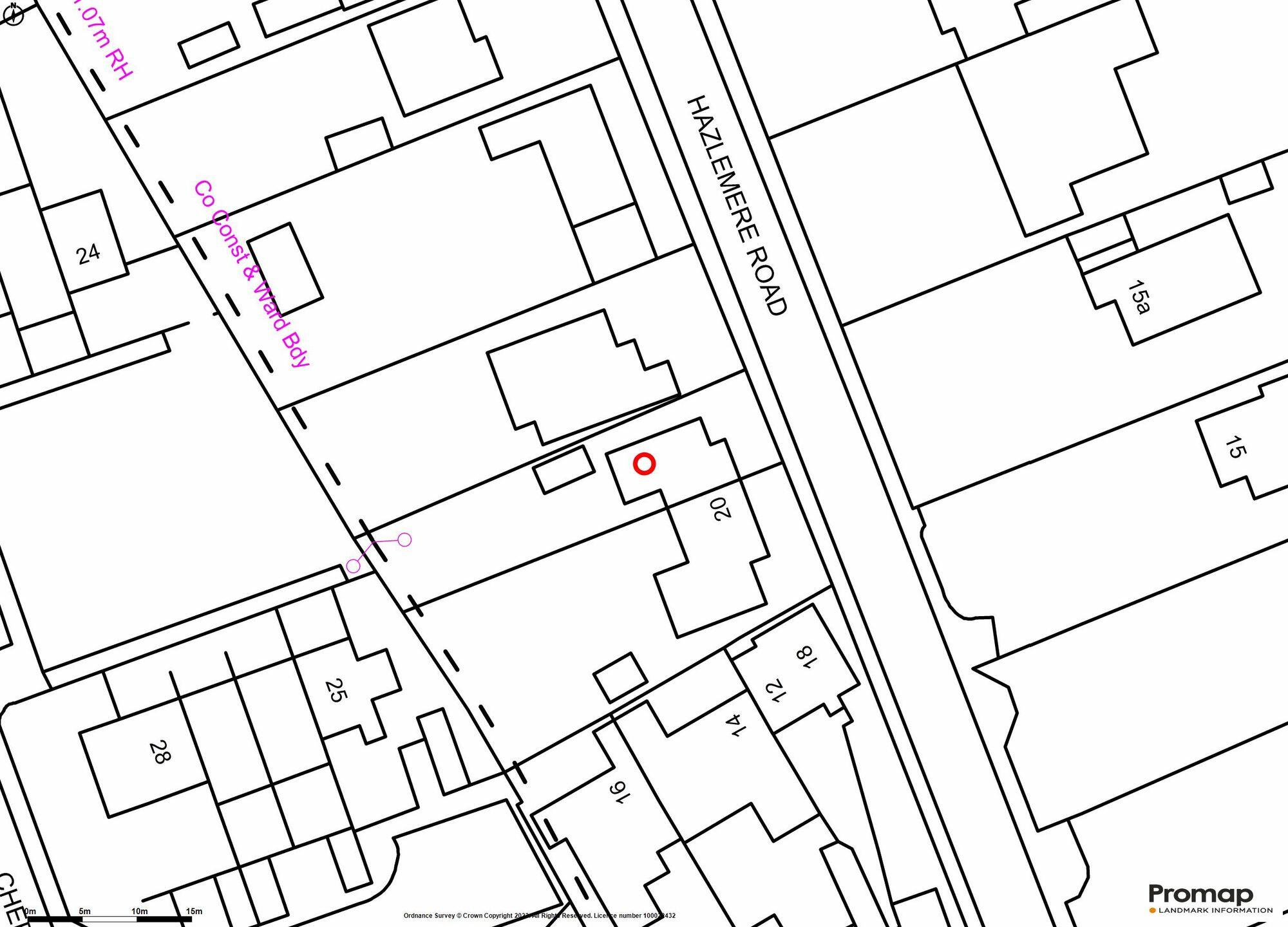
3 bedroom semi-detached house for sale in Hazlemere Road, Penn, High Wycombe, HP10 — £450,000 • 3 bed • 1 bath • 896 ft²
3 bedroom semi-detached house for sale in School Road, Penn, Buckinghamshire, HP10 — £650,000 • 3 bed • 1 bath • 718 ft²
3 bedroom semi-detached house for sale in Kite Wood Road, Penn, HP10 — £511,000 • 3 bed • 1 bath • 872 ft²
5 bedroom semi-detached house for sale in Court Lawns, Penn, HP10 — £650,000 • 5 bed • 2 bath • 1949 ft²
4 bedroom semi-detached house for sale in Hammersley Lane, Penn, HP10 — £798,000 • 4 bed • 2 bath • 1419 ft²
4 bedroom detached house for sale in Hazlemere Road, Penn, HP10 8AG, HP10 — £750,000 • 4 bed • 2 bath • 1582 ft²






































































































