Chain‑free three bedroom home with planning permission and south/west garden.
NO ONWARD CHAIN — ready for quick sale
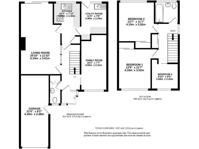
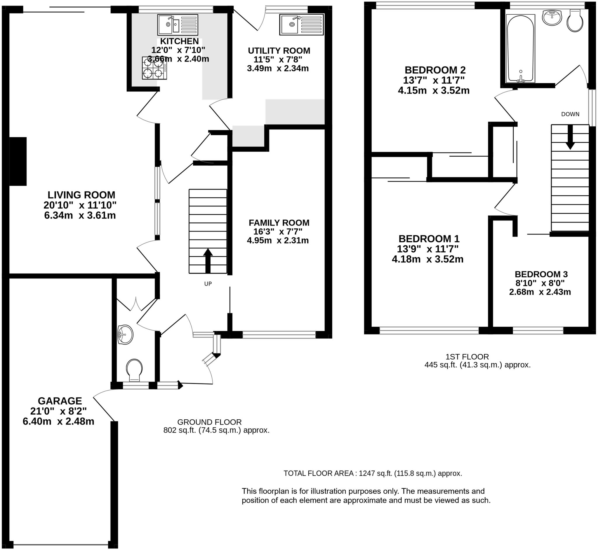
Set in a quiet Harpenden street and offered chain-free, this roomy three-bedroom semi delivers straightforward family living with clear potential. The extended ground floor gives a double reception with patio doors to south/westerly gardens, a separate family room, fitted kitchen and a useful utility — practical spaces for daily life and family entertaining.
The plot includes driveway parking for 2–3 cars, an attached garage with power and light, and a shaped rear garden with patio, raised lawn and decking that benefits from strong afternoon sun. The location is a key draw: easy access to central Harpenden, the station, River Lea Nature Reserve and several highly regarded schools including Sir John Lawes and St George’s.
A significant advantage is that planning permission has already been granted, creating straightforward scope for an extension or remodelling (note: no further details provided). Buyers should factor in some immediate updating: the property displays mid‑century finishes and dated decor, and the original system‑built walls are assumed to lack modern insulation, so energy and maintenance improvements are likely.
Practical considerations: there is a single family bathroom upstairs and an additional downstairs cloakroom, council tax is above average, and the EPC sits at band D. Broadband and mobile signal are excellent, and flood risk is low. Overall this is a sizeable, well‑located family home with development upside for purchasers prepared to update and personalise.
3 bedroom terraced house for sale in Lea Walk, Harpenden, AL5 — £625,000 • 3 bed • 1 bath • 1187 ft²
4 bedroom detached house for sale in Haslingden Close, Harpenden, AL5 — £1,050,000 • 4 bed • 1 bath • 1726 ft²
3 bedroom semi-detached house for sale in Lower Luton Road, Wheathampstead, St. Albans, Hertfordshire, AL4 — £675,000 • 3 bed • 2 bath • 1230 ft²
3 bedroom semi-detached house for sale in Wroxham Way, Harpenden, AL5 — £750,000 • 3 bed • 1 bath • 1350 ft²
3 bedroom semi-detached house for sale in Waveney Road, HARPENDEN, AL5 — £650,000 • 3 bed • 1 bath • 889 ft²
3 bedroom semi-detached house for sale in Alzey Gardens, Harpenden, Hertfordshire, AL5 — £700,000 • 3 bed • 1 bath • 914 ft²


































































