**Standout Features:**
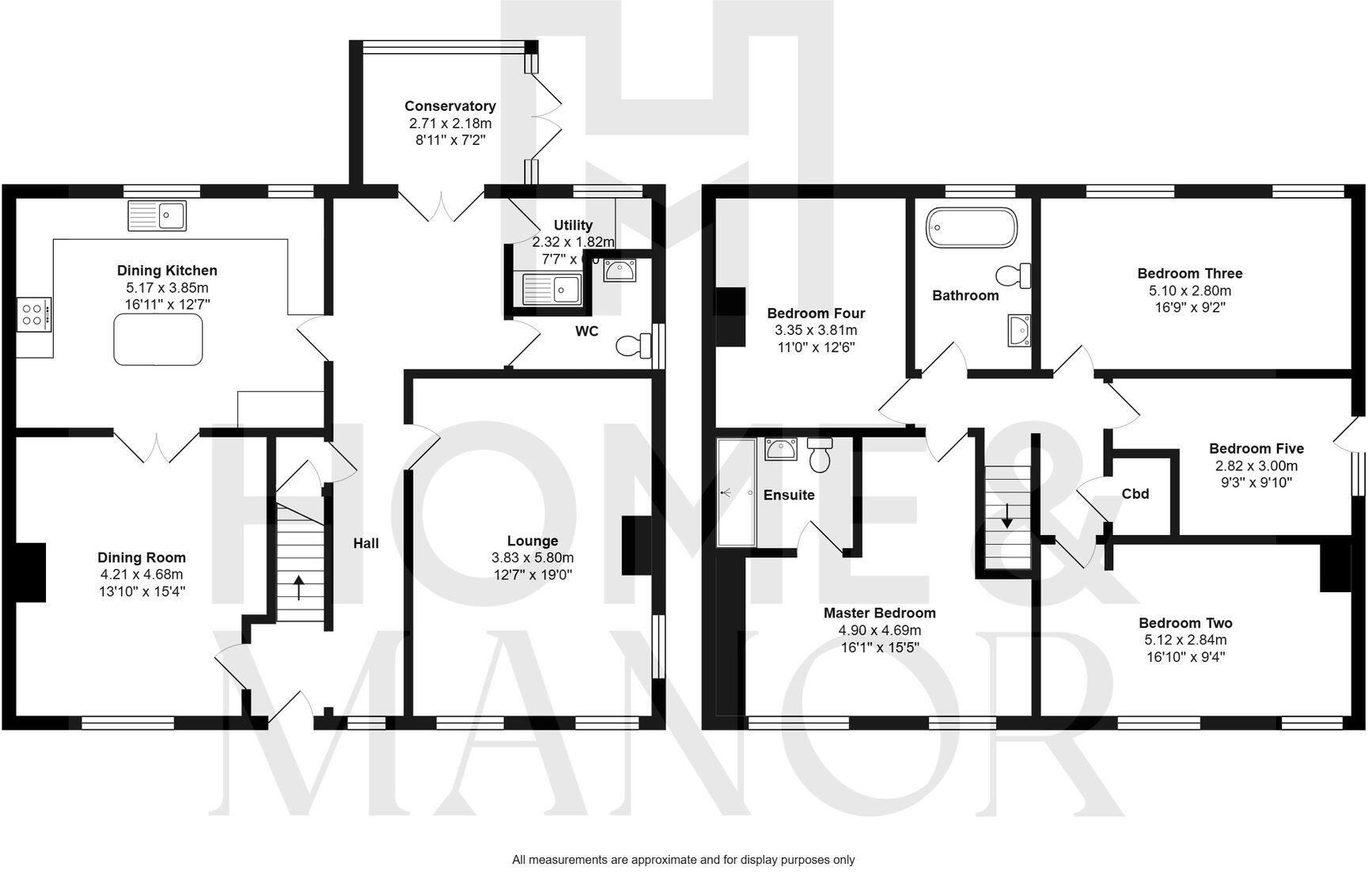
- 5 spacious double bedrooms
- Modern kitchen with island and integrated appliances
- Vast rear garden, ideal for outdoor activities
- Driveway with double garage
- Breathtaking countryside views
- Tranquil and secluded location
- Solar panels for energy efficiency
- Potential renovation and extension opportunities
**Concise Property Summary:**
Discover your dream family home nestled in serene Mirfield, where comfort meets modern elegance. This stunning end-of-terrace property boasts five generous double bedrooms, providing ample space for family living or entertaining. Revel in the spacious, contemporary kitchen, perfectly designed for culinary creativity, and enjoy the vast rear garden that offers endless outdoor possibilities and picturesque views of the countryside.
The home is impeccably maintained and features solar panels, contributing to sustainability while reducing energy costs. With a double garage and driveway, parking is convenient. Located in an affluent area with access to excellent local schools and amenities, this property is perfectly suited for families seeking a blend of tranquility and modern convenience. However, potential buyers should note that the property may require some modernization, particularly in insulation and broadband speed.
Don't miss the chance to own this idyllic escape—experience the unique charm and peaceful ambiance for yourself. Act fast, as homes of this caliber in such a desirable location are rarely available for long!
5 bedroom detached house for sale in Hollyhirst, Park Drive, Mirfield, WF14 — £895,000 • 5 bed • 4 bath • 3787 ft²
5 bedroom detached house for sale in Crossley Lane, Mirfield, WF14 — £550,000 • 5 bed • 2 bath • 2271 ft²
4 bedroom detached house for sale in Calder View, Mirfield, WF14 — £325,000 • 4 bed • 3 bath • 1464 ft²
4 bedroom detached house for sale in Cross Bank Street, Mirfield, WF14 8JY, WF14 — £450,000 • 4 bed • 3 bath • 1887 ft²
4 bedroom semi-detached house for sale in Blake Hall Drive, Mirfield, WF14 — £415,000 • 4 bed • 3 bath • 1561 ft²
7 bedroom detached bungalow for sale in Four Acres, Mirfield, WF14 — £900,000 • 7 bed • 3 bath • 3057 ft²














































































































































































