**Standout Features:**
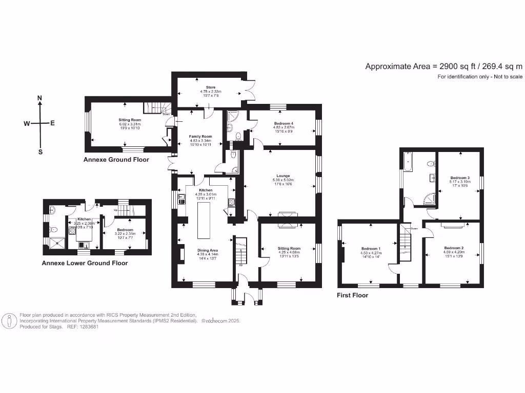
- Large 3/4 bedroom semi-detached period house
- Self-contained one-bedroom annexe
- Generously sized 2900 sq ft living space
- Multiple large reception rooms, perfect for entertaining
- Spacious west-facing garden with raised patio area
- Located in well-regarded Uffculme school catchment
- No onward chain for faster possession
- Conveniently situated near M5 Junction 28 (4 miles)
- Close to local amenities including shops and pub
**Concise Summary:**
This charming period semi-detached house in the heart of Kentisbeare combines historic character with modern living. Offering flexible accommodation across its 2900 sq ft, this property features spacious 3/4 bedrooms, a self-contained annexe perfect for guests or rental potential, and multiple reception rooms that flow seamlessly into an open-plan kitchen and dining area. Noteworthy architectural details such as high ceilings, sash windows, and oak flooring add a grand yet welcoming touch.
The expansive west-facing garden, complete with a raised patio, provides an ideal outdoor space for family gatherings or quiet evenings. Situated in a desirable village location within the Uffculme school catchment and just a short drive to the M5, this property offers convenience along with tranquility.
Although well-presented, factors such as a nearby electricity substation and average broadband speeds may require consideration. However, with no onward chain, this home presents an exclusive opportunity for families or investors looking to secure a beautiful residence in a low-crime area. Don’t miss out on making this spacious house your next home.
4 bedroom semi-detached house for sale in Chapel Hill, Uffculme, Cullompton, EX15 — £650,000 • 4 bed • 1 bath • 1595 ft²
4 bedroom detached bungalow for sale in Broad Road, Kentisbeare, Cullompton, EX15 — £765,000 • 4 bed • 2 bath • 1846 ft²
4 bedroom detached house for sale in The Cleeve, Culmstock, EX15 — £599,950 • 4 bed • 2 bath • 2067 ft²
5 bedroom semi-detached house for sale in South Molton Road, Bampton, Tiverton, EX16 — £550,000 • 5 bed • 1 bath • 2120 ft²
8 bedroom house for sale in Fore Street, Kentisbeare, Cullompton, Devon, EX15 — £995,000 • 8 bed • 5 bath • 4339 ft²
3 bedroom semi-detached house for sale in Witheridge, EX16 — £275,000 • 3 bed • 3 bath • 1840 ft²


















































































