Spacious freehold shop with conversion potential in busy town centre.
- Prominent High Street frontage with large glazed retail display
- Very large ground-floor retail area, long internal depth
- Freehold with vacant possession, straightforward ownership
- Upper floors suitable for office/storage or conversion (subject to consent)
- Requires renovation throughout; modernisation and insulation needed
- Commercial EPC rated D; energy improvements likely required
- Located in very deprived area with very high local crime rates
- No private outdoor space; solid brick walls assumed uninsulated
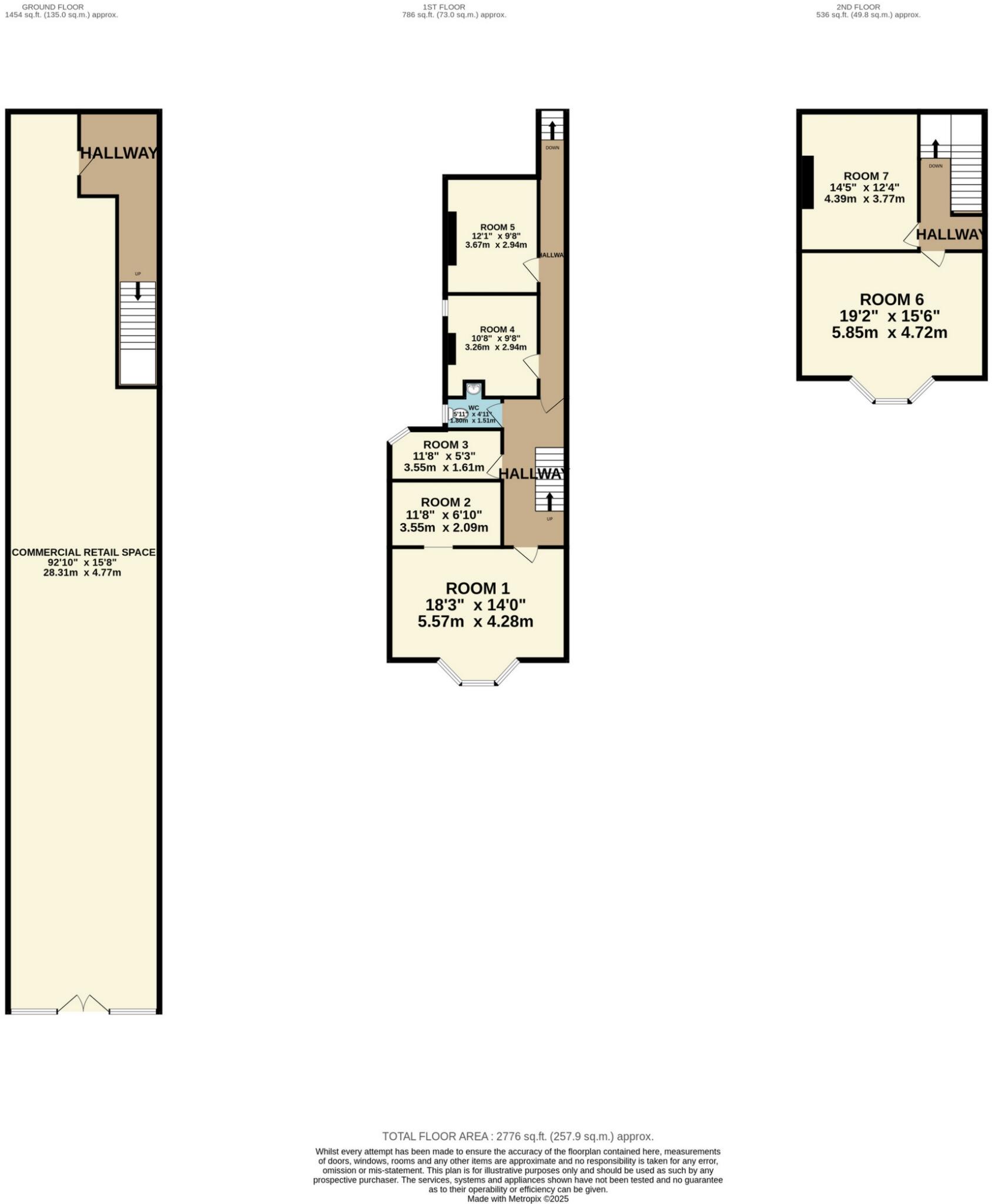
This substantial mid-terrace commercial property occupies a prominent High Street position in Redcar, offering a long, glazed retail frontage and generous ground-floor retail area ideal for high-footfall trading. The unit is sold freehold with vacant possession, presenting a straightforward acquisition for an investor or operator seeking town-centre exposure.
Upper floors provide a mix of rooms currently used as office and storage space and present potential for alternative uses, including residential conversion subject to planning consent from Redcar & Cleveland Council. The building is solid-brick Victorian stock (circa 1900–1929) and benefits from mains gas heating, double glazing installed before 2002, and clear access from the pavement.
The property does require renovation and refurbishment throughout; works are likely needed to modernise services, improve thermal performance (walls assumed uninsulated) and raise the EPC rating above the current D. There is no private outdoor amenity, and the high local crime and area deprivation levels should be factored into operating or conversion plans.
For buyers seeking an income-producing or refurbishment-led opportunity in a busy retail strip, this premises offers scale, visibility and clear development potential. Costs and timescales for repair, compliance and any planning changes should be budgeted before acquisition.
High street retail property for sale in High Street, Redcar, North Yorkshire, TS10 — £750,000 • 1 bed • 1 bath • 22852 ft²
Office for sale in 5 & 5a High Street, Redcar, North Yorkshire, TS10 — £195,000 • 1 bed • 1 bath • 4897 ft²
Commercial property for sale in High Street, Redcar, TS10 — £265,000 • 4 bed • 1 bath • 2685 ft²
High street retail property for sale in 106 High Street, Redcar, North Yorkshire, TS10 — £115,000 • 1 bed • 1 bath • 1937 ft²
Shop for sale in West Dyke Road, Redcar, North Yorkshire, TS10 — £140,000 • 2 bed • 1 bath
Commercial property for sale in High Street, Redcar, North Yorkshire, TS10 — £100,000 • 1 bed • 1 bath • 1544 ft²


























































































































































