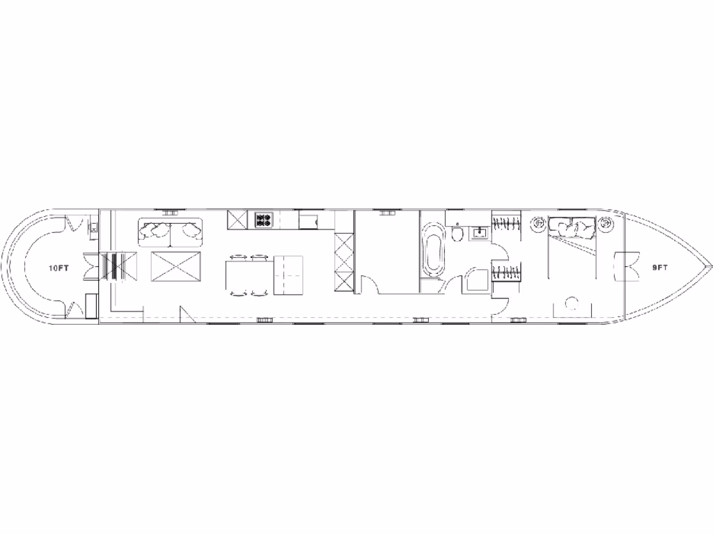
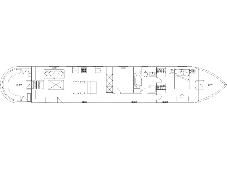
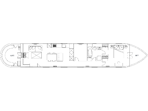
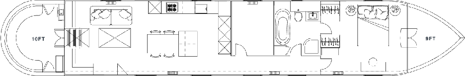
**Standout Features:**
- Spacious 73ft x 12.3ft houseboat with modern design
- L-shaped kitchen with granite worktops, butler sink, and integrated appliances
- Large living area with skylight, diesel stove, and 42" flat-screen TV
- Luxurious master suite with walk-in wardrobe and French doors leading to the deck
- Stylish bathroom with roll-top bath and separate shower
- Versatile second bedroom for guest use or office/exercise space
- Spacious stern with wrap-around seating and removable weather cover
Nestled along Mill Lane in Maidenhead, this stunning 2-bedroom houseboat offers an exceptional blend of luxury and functionality, perfect for families, first-time buyers, or those seeking a unique residence. The open-plan living area, flooded with natural light from a spacious skylight, is designed for comfort and socializing. The beautifully appointed kitchen features high-end finishes, including navy-blue shaker cabinets and modern appliances, allowing for culinary creativity.
Retreat to the large master suite, complete with a walk-in wardrobe and French doors opening onto the inviting bow deck—ideal for morning coffee or sunset cocktails. The second bedroom offers flexibility, perfect for guests or as a home office. Enjoy the ample outdoor space on the stern, perfect for entertaining or relaxing, with an all-weather cover ensuring year-round usability.
While the local area boasts high crime rates, the affluent community also offers excellent schools, diverse amenities, and beautiful waterfront views. Don’t miss out on this unique houseboat opportunity—experience riverfront living in style and comfort before it’s gone!
2 bedroom house boat for sale in Lammas Drive, Staines, Surrey, TW18 — £200,000 • 2 bed • 1 bath • 1000 ft²
1 bedroom house boat for sale in Packet Boat Waterside & Marina, Uxbridge, UB8 — £172,000 • 1 bed • 1 bath
2 bedroom house boat for sale in Monkey Island Lane, Maidenhead, Berkshire, SL6 — £199,950 • 2 bed • 1 bath • 355 ft²
3 bedroom house boat for sale in Unitan, Maidenhead, SL6 — £240,000 • 3 bed • 2 bath
2 bedroom house boat for sale in Staines, Surrey, TW18 — £595,000 • 2 bed • 2 bath • 1000 ft²
2 bedroom property for sale in The Avenue, Wraysbury,, TW19 — £149,950 • 2 bed • 1 bath


























































