LS22 4EB - 3 bedroom cottage for sale in Kirk Deighton, Nr Wetherby, M…

View on Property Piper

3 bedroom cottage for sale in Kirk Deighton, Nr Wetherby, Main Street, LS22

Summary - LABURNUM COTTAGE MAIN STREET KIRK DEIGHTON WETHERBY LS22 4EB

3 bed 1 bath Cottage

**Standout Features:**
- Detached period cottage dating back to the 1700s
- Three spacious bedrooms and a stylishly modernized bathroom
- Extended living space with a stunning dining kitchen featuring quality appliances and an Esse stove
- Underfloor heating in parts of the ground floor
- Mature private gardens with breathtaking elevated countryside views
- Large rear garden with a patio, greenhouse, and summer house
- Chain free with freehold tenure
- Listed status may present challenges for renovations

**Overview:**
Laburnum Cottage is a captivating 18th-century detached cottage, beautifully blending historic charm with modern upgrades. This three-bedroom home offers an inviting atmosphere, highlighted by a stunning dining kitchen equipped with quality appliances and underfloor heating. The rustic yet cozy living room boasts an original bay window and a wood-burning stove, creating a warm, welcoming environment. Enjoy elevated views of the idyllic North Yorkshire countryside from the large rear garden, perfect for entertaining in your patio or unwinding in the summer house.

While the property’s listed status adds an element of character, it may pose constraints for future renovations. Located in a picturesque village setting, this home is ideal for families or those seeking a peaceful retreat without compromising on modern comforts. With established schools nearby and a tranquil environment, don't miss out on this unique opportunity—cottage living at its finest awaits you!

Property Details

Brochure Descriptions

Image Descriptions

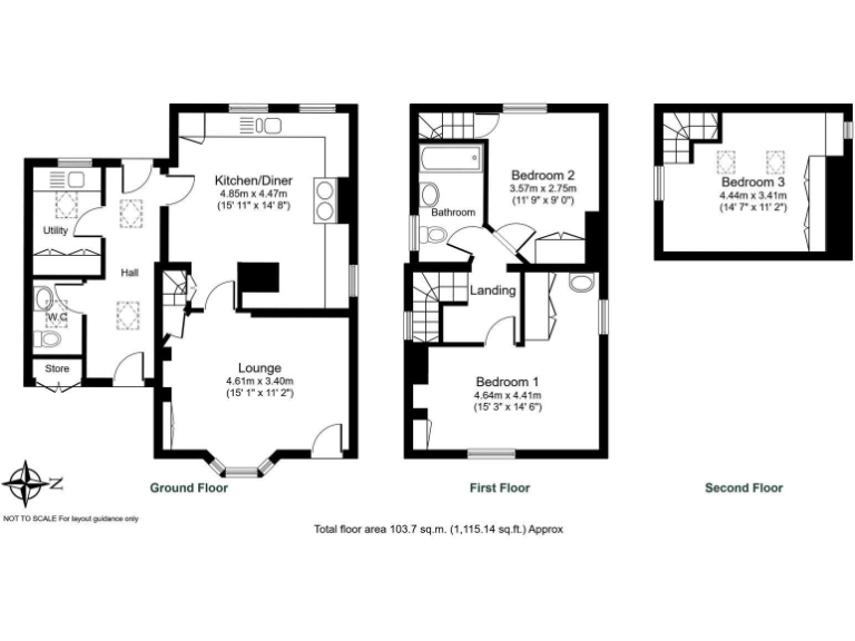
Floorplan Description

Rooms

Textual Property Features

Detected Visual Features

EPC Details

Nearby Schools

Nearest Bars And Restaurants

,,,,}

Nearest General Shops

,,}

Nearest Grocery shops

,,}

Nearest Supermarkets

,,}

Nearest Religious buildings

,,}

Nearest Medical buildings

,,,}

Nearest Airports

}

Nearest Leisure Facilities

,,,,}

Nearest Tourist attractions

,,}

Nearest Train stations

,,,,}

Nearest Bus stations and stops

,,,,}

Nearest Hotels

,,}

Tags

Local Market Stats

Meta

High Res Images

Compatible Images

Low res Images

Thumbnails

Raw Images

High Res Floorplan Images

Compatible Floorplan Images

Low res Floorplan Images

FloorplanImages Thumbnail

Raw Floorplan Images