Spacious modern four-bedroom home with large deck, parking for three and easy access to Saltaire.
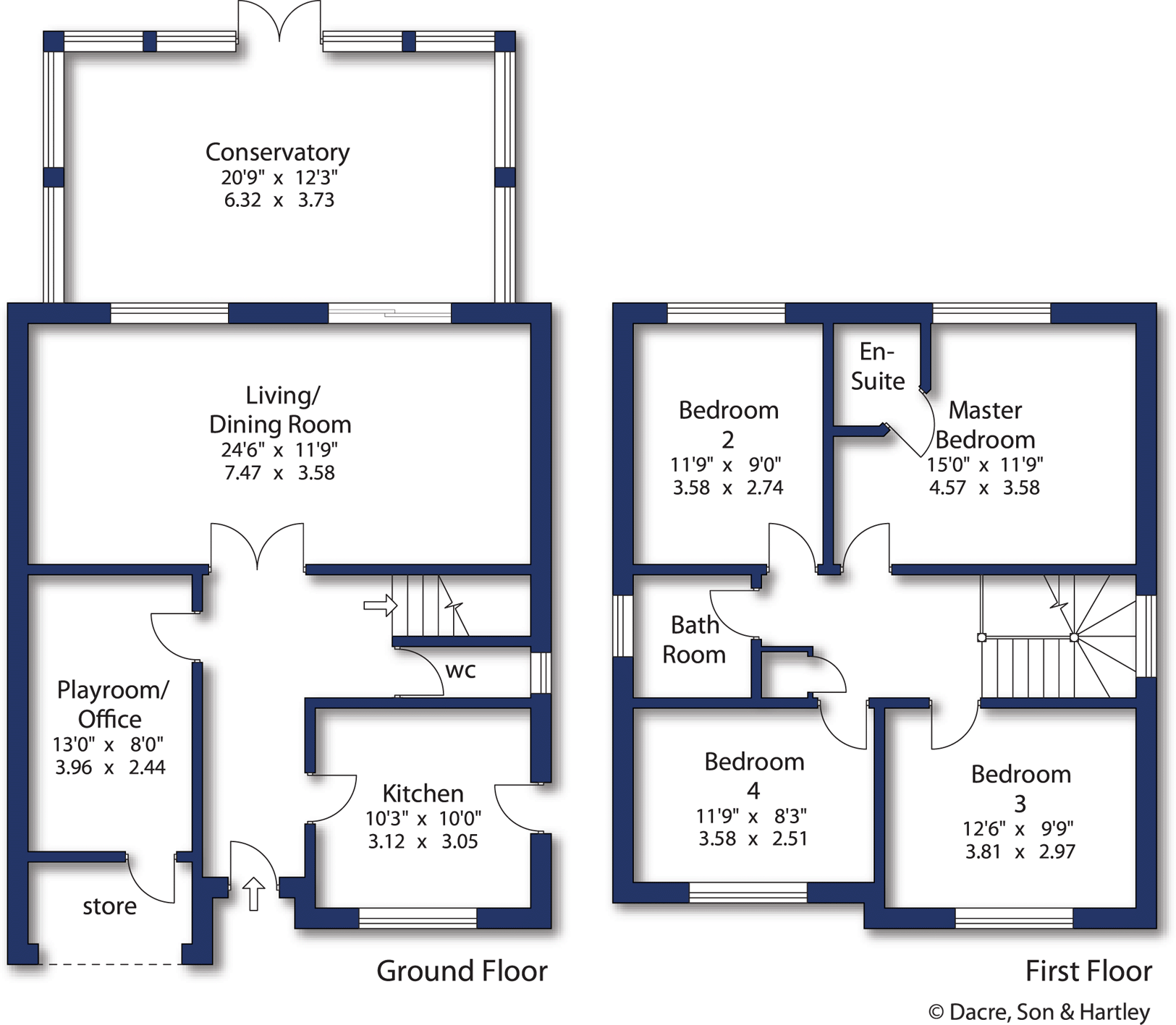
- Four double bedrooms and master en-suite shower room
- Extended conservatory and separate home office/playroom
- Large decked patio; sloping rear lawn to rear
- Driveway for three cars plus attached garage
- Built 2003–2006 with double glazing and gas central heating
- Close to Saltaire, Bingley, rail links and several good schools
- Council Tax Band E (above-average council tax costs)
- No recorded flood risk; modern suburban setting provides limited views
A superior four-bedroom detached family home arranged over two floors, thoughtfully extended to include a bright conservatory and flexible ground-floor study/playroom. The house is presented to a tasteful, modern standard and offers generous living space for everyday family life and entertaining.
Outside, the wide driveway provides parking for three vehicles and leads to an attached garage; the rear garden slopes down to a large, secluded decked patio ideal for dining and play. Built in the mid-2000s, the property benefits from double glazing and gas central heating via a boiler and radiators.
Located in a prestigious residential pocket close to Saltaire and Bingley, the location combines quiet, low-crime streets with good access to local shops, leisure facilities and frequent rail services into Leeds and Bradford. Several well-rated primary and secondary schools are within easy reach, making this a practical family choice.
Practical points to note: the home sits in Council Tax Band E (above average running costs) and, while nicely presented, is typical of modern suburban construction with limited elevated views. Tenure is freehold and there is no recorded flooding risk.
4 bedroom house for sale in Bracken Grange Court, Nabwood, BD18 — £450,000 • 4 bed • 3 bath • 3700 ft²
4 bedroom detached house for sale in Bracken Grange Court, Shipley, BD18 — £429,995 • 4 bed • 2 bath • 1087 ft²
5 bedroom detached house for sale in New Close Road, Shipley, West Yorkshire, BD18 — £475,000 • 5 bed • 2 bath • 1567 ft²
4 bedroom detached house for sale in New Close Road, Nab Wood, Shipley, BD18 — £499,950 • 4 bed • 3 bath • 1621 ft²
3 bedroom semi-detached house for sale in Nab Wood Road, Nab Wood, BD18 — £230,000 • 3 bed • 1 bath • 840 ft²
5 bedroom detached house for sale in Back Threshfield Road, Baildon, Shipley, West Yorkshire, BD17 — £600,000 • 5 bed • 3 bath • 2182 ft²


























































































































