**Standout Features:**
- Grade II listed end-of-terrace cottage dating back to 1449
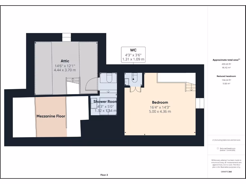
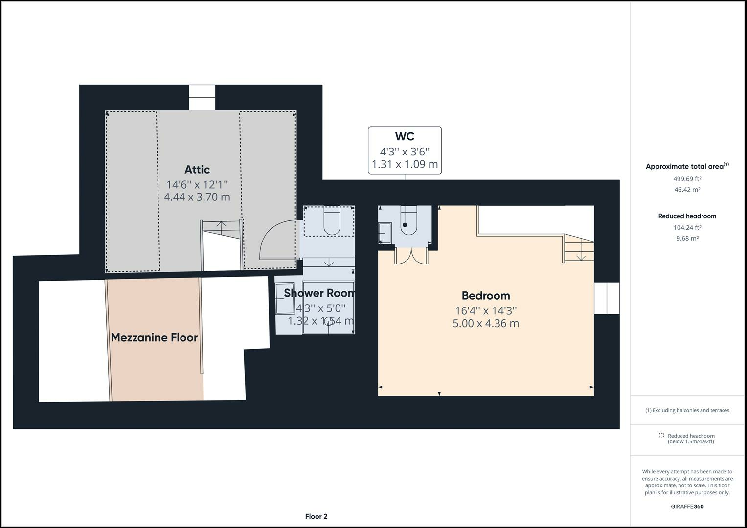
- Three spacious bedrooms, including a master with vaulted ceiling and en-suite
- Charming lounge with inglenook fireplace
- Unique mezzanine space accessible from bedroom two
- Attractive "L"-shaped backyard with off-street parking for one car
- Retains original character with exposed wooden beams and period features
- Conveniently situated within walking distance to Bewdley town center and Jubilee Gardens
**Potential Downsides:**
- Limited parking; permanent right of access but no parking across the back gate
- Current access to cellar is bricked up
- Renovating, extending, or developing options are limited due to listed status
This delightful three-bedroom cottage on High Street offers a rare opportunity to own a piece of history combined with modern comforts. Perfect for families or as a unique investment, the property boasts original timber features and a cozy inglenook fireplace, creating an inviting atmosphere for relaxing evenings. The master bedroom offers a private sanctuary with direct access to an en-suite, while the versatile mezzanine space adds to the charm, ideal for storage or an additional quiet retreat.
Set in the picturesque small town of Bewdley, renowned for its vibrant community and scenic surroundings, this home is just a stroll away from local conveniences, parks, and the tranquil banks of the River Severn. While the parking is limited, the charming outdoor area allows for low-maintenance enjoyment and showcases the property’s character. With a rich history and potential for personalization, this unique cottage invites you to explore the perfect blend of quaint charm and family living—viewings are highly recommended to experience all it has to offer before it’s gone!
3 bedroom terraced house for sale in High Street, Bewdley, Worcestershire, DY12 — £345,000 • 3 bed • 2 bath • 1347 ft²
3 bedroom detached house for sale in Welch Gate, Bewdley, DY12 — £269,500 • 3 bed • 1 bath • 1230 ft²
3 bedroom end of terrace house for sale in Burltons Terrace, High Street, Bewdley, DY12 — £350,000 • 3 bed • 1 bath • 829 ft²
2 bedroom cottage for sale in Severn Side South, Bewdley, Worcestershire, DY12 — £215,000 • 2 bed • 1 bath • 722 ft²
2 bedroom cottage for sale in Sandy Bank, Bewdley, DY12 — £249,950 • 2 bed • 1 bath • 818 ft²
3 bedroom cottage for sale in Wyre Hill, Bewdley, DY12 — £309,950 • 3 bed • 1 bath • 1077 ft²






























































































































