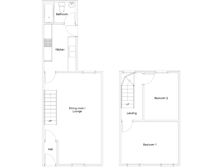
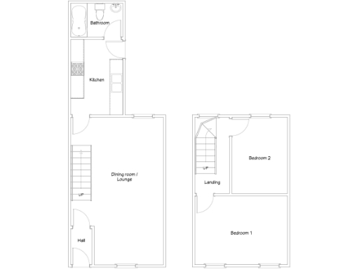
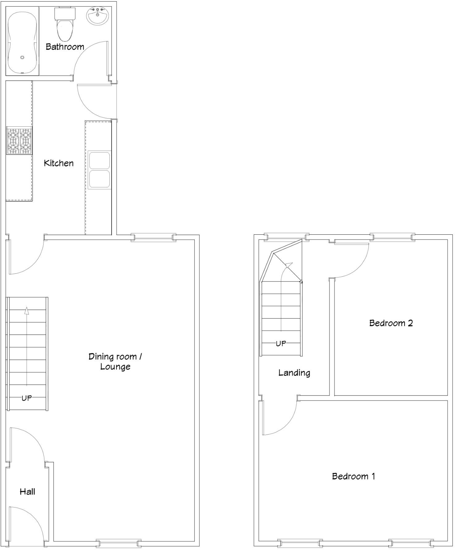
**Standout Features:**
- Newly renovated Victorian terraced house
- 2 Bedrooms, 1 modern bathroom
- Garage parking and fully enclosed garden
- Open plan lounge/dining area with laminate flooring
- Proximity to schools, amenities, and travel links
- Comfortable and light-filled spaces
**Potential Downsides:**
- Located in a relatively deprived area with above-average crime rates
- Smaller plot and average-sized rooms
Discover the charm of this newly renovated Victorian terrace in the historical town of Abertillery. This immaculate home features a spacious open plan lounge/dining area, perfect for family gatherings, and a modern kitchen fitted with contemporary Shaker-style cabinets and new appliances. Both double bedrooms are generously sized, offering plush carpeting and light, airy interiors.
Enjoy the tranquility of your fully enclosed rear garden, ideal for relaxing or entertaining, alongside the convenience of garage parking. With average broadband speeds and excellent mobile signal, this property balances comfort with modern living.
Although the location may present concerns with higher crime rates and socio-economic challenges, it provides easy access to local schools, shops, and rural walking paths for outdoor enthusiasts. Don’t miss out on this opportunity to own a stylish home in a vibrant community - perfect for first-time buyers or small families looking for a cozy retreat! Act soon to secure your slice of Abertillery!
2 bedroom terraced house for sale in Alma Street, Abertillery, NP13 1QB, NP13 — £130,000 • 2 bed • 1 bath • 775 ft²
3 bedroom terraced house for sale in Clynmawr Street, Abertillery, Gwent, NP13 — £144,950 • 3 bed • 1 bath • 1114 ft²
2 bedroom end of terrace house for sale in Evelyn Street, Abertillery, Gwent, Blaenau Gwent, NP13 — £145,000 • 2 bed • 1 bath • 775 ft²
2 bedroom terraced house for sale in Tillery Street, Abertillery, NP13 — £100,000 • 2 bed • 1 bath • 636 ft²
3 bedroom semi-detached house for sale in Portland Street, Abertillery, Gwent, Blaenau Gwent, NP13 — £104,995 • 3 bed • 1 bath • 991 ft²
3 bedroom terraced house for sale in Marlborough Road, Abertillery, Gwent, Blaenau Gwent, NP13 — £129,995 • 3 bed • 2 bath • 894 ft²


























































































