Exceptional scale, countryside views and versatile living for modern family life.
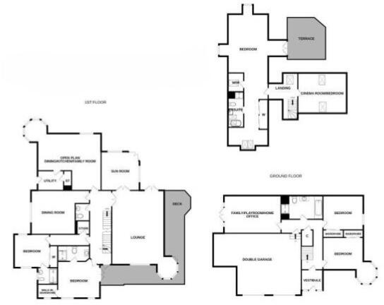
Approx. 440 sqm detached family home across three floors
Five double bedrooms; primary suite with terrace and dressing area
Three en‑suite bathrooms plus separate family bathroom and guest W/C
Striking lounge with turret, sun lounge and formal dining room
Landscaped gardens with panoramic views across the Sidlaws
Integral double garage and horseshoe driveway for extensive parking
LPG heating (not mains gas) — consider running costs
Slow broadband and average mobile signal; remoter location and high Council Tax Band G
Set on an elevated plot with sweeping Sidlaws views, this substantial detached family home offers versatile living across three floors and generous proportions (approx. 440 sqm). The primary suite with dressing area, en‑suite and private terrace provides a quiet retreat, while two further en‑suite bedrooms and flexible reception rooms suit multi‑generational family life or home working.
Accommodation centres on a striking lounge with turret, a contemporary kitchen/dining area, formal dining room and a sun lounge that frames the landscaped gardens. Practical features include an integral double garage and horseshoe driveway for ample parking and storage. The property is offered Freehold and has been independently RICS‑valued at £825,000.
Important practical points: heating is supplied by LPG (not mains gas), broadband speeds are slow and mobile signal is average. The house sits in a remoter, comfortable suburbia setting but the wider area is recorded as very deprived and council tax is Band G (relatively high). These factors may affect running costs and connectivity for some buyers.
This is a high‑value family home with strong internal space and exceptional views; it will suit buyers seeking a large, well‑appointed residence with potential for modernisation to personal taste. Internal inspection is recommended to appreciate the scale, layout and outlook.
3 bedroom detached house for sale in Arbirlot, Arbroath, DD11 — £300,000 • 3 bed • 2 bath
5 bedroom detached house for sale in 16 Braeside, Kirkton of Auchterhouse, Dundee, Angus, DD3 0QQ, DD3 — £790,000 • 5 bed • 4 bath • 4585 ft²
5 bedroom detached house for sale in Off Baldovan Road,
Strathmartine,
Angus,
DD3 0PG, DD3 — £375,000 • 5 bed • 1 bath
5 bedroom detached house for sale in Angus Crescent, Monifieth, DD5 — £525,000 • 5 bed • 4 bath • 2164 ft²
5 bedroom detached house for sale in Parklands Of Murroes, Kellas, Dundee, Angus, DD5 — £1,650,000 • 5 bed • 5 bath • 7928 ft²
6 bedroom detached house for sale in Oakbank Crescent, Perth, Perth and Kinross, PH1 — £535,000 • 6 bed • 5 bath • 3684 ft²










































































































































































































