Three-bedroom freehold close to stations and top schools.
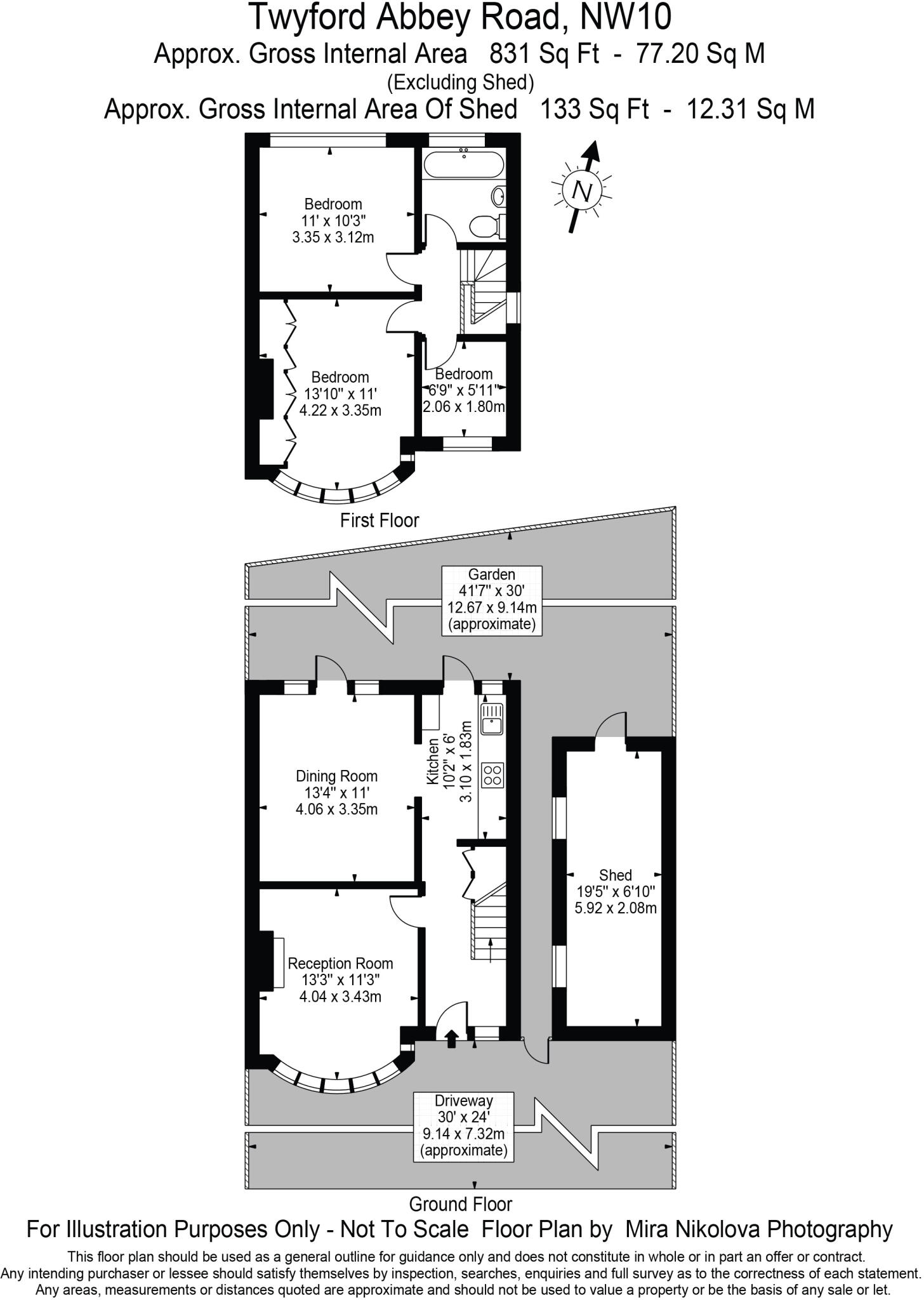
Freehold three-bedroom semi-detached house, 831 sq ft
Two reception rooms plus separate fitted kitchen
Private rear garden and large 133 sq ft side shed
Off-street driveway parking and good kerb appeal
Short walk to Hanger Lane and Park Royal stations
Single bathroom; rooms are compact for modern families
Cavity walls likely uninsulated; glazing date unknown
Area has high crime and above-average council tax
This three-bedroom, freehold semi-detached home on Twyford Abbey Road offers practical family living across 831 sq ft. Two reception rooms, a separate kitchen and a private rear garden provide everyday flexibility, while a large side shed gives useful storage or workshop potential.
The property is well placed for commuters: Hanger Lane and Park Royal stations are within easy walking distance, with quick road access to the A40 and North Circular. Local primary and secondary schools include several rated Good or Outstanding, and nearby shops, parks and transport links suit family routines.
Buyers should note material drawbacks plainly: the area records higher-than-average crime and elevated local deprivation indicators, and council tax is above average. The house retains cavity walls assumed to be uninsulated and the glazing date is unknown; some insulation and energy-efficiency improvements are likely needed. Internally rooms are serviceable but compact, and there is a single bathroom.
Overall this is a straightforward freehold family home or rental opportunity with convenient transport, outdoor space and scope to add value through targeted upgrades to heating, insulation and interiors.
3 bedroom semi-detached house for sale in Moyne Place, West Twyford, NW10 — £725,000 • 3 bed • 1 bath • 916 ft²
3 bedroom semi-detached house for sale in Bispham Road, Acton, NW10 — £699,950 • 3 bed • 1 bath • 1100 ft²
3 bedroom semi-detached house for sale in Rossall Crescent, Willesden, NW10 — £750,000 • 3 bed • 2 bath • 1321 ft²
3 bedroom semi-detached house for sale in Twybridge Way, London, NW10 — £565,000 • 3 bed • 2 bath • 1034 ft²
3 bedroom house for sale in Huxley Gardens, Ealing, London, NW10 — £750,000 • 3 bed • 2 bath • 1511 ft²
2 bedroom end of terrace house for sale in Abbeyfields Close, West Twyford, London, NW10 — £465,000 • 2 bed • 1 bath • 658 ft²


















































