Compact family home with conservatory and summer house near Ryde centre.
- Three-storey terraced house with open-plan living
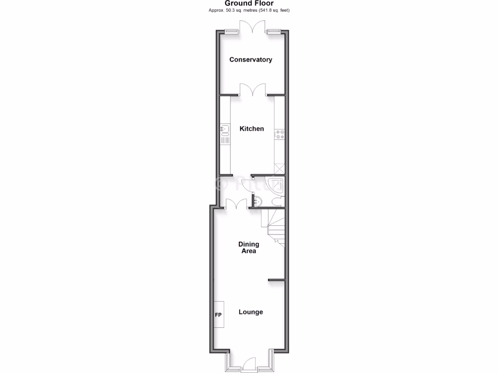
This three-storey terraced home in Green Street, Ryde offers practical family accommodation across approximately 802 sq ft. The layout includes an open-plan living area, a conservatory to the rear that brings extra light and useful living space, and an idyllic summer house in the rear garden — handy as a home office, studio or storage. Two shower/bathroom facilities (ground and first floor) suit busy households and reduce morning congestion.
The property sits within easy walking distance of Ryde town centre, strong transport links and local amenities, with fast broadband and excellent mobile signal for remote working. The long lease (837 years) and low council tax are positive ownership factors, and the no-flood-risk status provides peace of mind.
Practical considerations: the house is a small terraced property and will appeal to buyers seeking compact, economical living rather than spacious rooms. The exterior and some internal areas show wear and the home will benefit from modernization to fully unlock its potential. The surrounding area is classified as deprived and local crime is above average — buyers should factor neighbourhood conditions into their decision.
Overall, this is a sensible option for a first-time buyer or small family wanting convenient access to Ryde town and transport, plus outside space and a useful conservatory. With some updating it could become a comfortable, well-connected home or a rental proposition for investors aware of local market conditions.
3 bedroom end of terrace house for sale in Green Street, Ryde, Isle Of Wight, PO33 — £199,950 • 3 bed • 1 bath • 722 ft²
4 bedroom semi-detached house for sale in John Street, Ryde, 2PY, PO33 — £435,000 • 4 bed • 2 bath • 1886 ft²
3 bedroom semi-detached house for sale in Adelaide Place, Ryde, Isle of Wight, PO33 — £300,000 • 3 bed • 2 bath • 872 ft²
2 bedroom terraced house for sale in Warwick Street, Ryde, Isle Of Wight, PO33 — £185,000 • 2 bed • 1 bath • 560 ft²
2 bedroom terraced house for sale in East Street, Ryde, Isle of Wight, PO33 — £150,000 • 2 bed • 1 bath • 818 ft²
3 bedroom semi-detached house for sale in Central Ryde, PO33 — £209,950 • 3 bed • 1 bath • 803 ft²


































































