Period charm on half an acre with annex potential for growing families.
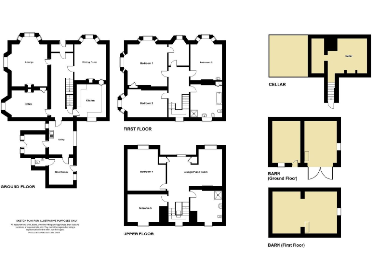
About 3,530 sqft Victorian stone villa with five double bedrooms
A substantial Victorian stone villa set on a mature half‑acre plot in Newsham, offering classic proportions, high ceilings and generous rooms. The house spans about 3,530 sq ft with five double bedrooms, four reception rooms, cellar, utility/boot room and a large two‑storey barn (potential annex subject to planning). This is a rare opportunity to secure a large period family home in a quiet village setting with easy access to Richmond, Barnard Castle and the A66/A1(M).
The gardens are a major asset: sweeping drive, mature specimen trees, extensive lawns, separate vehicular access and garaging provide privacy and excellent outdoor space. The adjoining barn/workshop with power and light increases scope for conversion, home business or ancillary accommodation, subject to consents.
The property is sold freehold and chain free, but it requires renovation and updating. The heating is oil‑fired (external boiler 2018; bunded tank 2021) and some internal areas show signs of water staining and general wear. There is no confirmed planning for the barn conversion; buyers should allow for planning fees, renovation costs and relatively high council tax.
For buyers seeking a large period home with significant scope to personalise and add value, this offers strong potential. For those wanting a turn‑key house, the refurbishment requirement and running costs (oil heating, council tax) are material factors to budget for.
4 bedroom property for sale in Hallgarth Court, Newsham, Richmond, DL11 — £524,950 • 4 bed • 3 bath • 2702 ft²
2 bedroom detached house for sale in Hallgarth Court, Newsham, Richmond, North Yorkshire, DL11 — £450,000 • 2 bed • 2 bath • 1809 ft²
4 bedroom terraced house for sale in Hallgarth Court, Newsham, DL11 — £500,000 • 4 bed • 3 bath • 2730 ft²
6 bedroom detached house for sale in Hornby Gardens, Hornby, Bedale DL8 1NQ, DL8 — £850,000 • 6 bed • 2 bath • 3111 ft²
4 bedroom mews property for sale in Hallgarth Court, Newsham, Richmond, North Yorkshire, DL11 — £430,000 • 4 bed • 2 bath • 2497 ft²
3 bedroom house for sale in Barningham, Richmond, North Yorkshire, DL11 — £485,000 • 3 bed • 2 bath • 1464 ft²


















































































































