Charming two-bedroom period house with cottage garden in central Cowfold..
Period charm with sash windows, exposed timber and cottage fireplaces
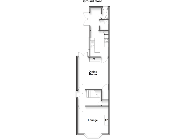
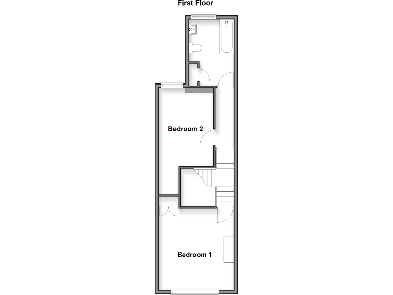
Generous overall size: approx. 1,174 sq ft across two floors
Lovely cottage garden with summerhouse; small plot size
Two double bedrooms and one sizable bathroom
Compact kitchen — suitable for updating or reconfiguration
Oil-fired central heating; boiler present (fuel not communal)
No guaranteed parking; off-road space may be available to rent
Double glazing present but installation date unknown
A characterful two-bedroom period home tucked in the heart of Cowfold village, offering 1,174 sq ft of living space and a delightful cottage garden with summerhouse. Original features such as sash windows, cosy open fires and exposed timber framing give the house strong kerb appeal and a welcoming, light-filled interior.
The layout works well for downsizers or buyers seeking a second village home: comfortable lounge and separate dining room, two double bedrooms and a generous bathroom. The kitchen is compact and could be updated to better suit modern living; the property presents clear scope for sympathetic improvement while retaining period charm.
Practical points are straightforward: freehold tenure, oil-fired central heating with boiler and radiators, double glazing of unknown installation date, and very low local crime. Off-street parking is not included but may be available to rent from a neighbour, so buyers who need guaranteed parking should check availability.
Set in an affluent, semi-rural community with fast broadband, excellent mobile signal and easy road links, the home suits those wanting village life with access to countryside walks and nearby schools. Note the home dates from the early 1900s and will require routine maintenance and prospective buyers should verify services, planning history and appliances before purchase.
2 bedroom end of terrace house for sale in Bolney Road, Cowfold, RH13 — £375,000 • 2 bed • 1 bath • 866 ft²
2 bedroom semi-detached house for sale in Oakfield Road, Cowfold, RH13 — £300,000 • 2 bed • 1 bath • 835 ft²
2 bedroom terraced house for sale in Station Road, Cowfold, RH13 — £300,000 • 2 bed • 1 bath • 626 ft²
3 bedroom end of terrace house for sale in Acorn Avenue, Cowfold, West Sussex, RH13 — £350,000 • 3 bed • 1 bath • 776 ft²
3 bedroom semi-detached house for sale in Henfield Road, Horsham, RH13 — £550,000 • 3 bed • 2 bath • 1134 ft²
3 bedroom detached house for sale in Henfield Road, Cowfold, RH13 — £550,000 • 3 bed • 2 bath • 1223 ft²






































































