Ready-to-move one-bedroom, ideal for first-time buyers or buy-to-let.
Freehold one-bedroom ground-floor flat, newly refurbished
A compact, newly refurbished one-bedroom home offered freehold and ready to occupy. Fresh plaster, new flooring and a contemporary kitchen create a bright, low-maintenance interior ideal for first-time buyers or those downsizing. High bay windows bring generous natural light into the main room.
Practical benefits include cheap council tax, excellent mobile signal and fast broadband — useful for working from home or keeping tenants connected. The property’s modest purchase price and recent upgrade reduce upfront costs and increase rental appeal.
Notable limitations are the small internal footprint and absence of a private garden; outdoor space is limited to a small forecourt. The building is a traditional sandstone tenement and photographs note possible roof issues to consider — buyers should arrange a survey. The property sits in a very deprived, hard-pressed area, which may affect long-term capital growth and lettings demand.
1 bedroom flat for sale in Bank Street, Coatbridge, North Lanarkshire, ML5 — £70,000 • 1 bed • 1 bath • 518 ft²
1 bedroom flat for sale in Garturk Street, Coatbridge, Lanarkshire, ML5 — £66,000 • 1 bed • 1 bath • 532 ft²
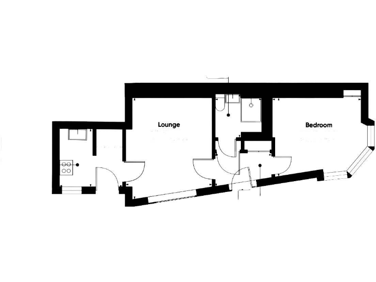
2 bedroom flat for sale in West George Street, Coatbridge, North Lanarkshire, ML5 — £80,000 • 2 bed • 1 bath • 769 ft²
1 bedroom flat for sale in Alston Avenue, Coatbridge, North Lanarkshire, ML5 — £78,000 • 1 bed • 1 bath • 471 ft²
1 bedroom flat for sale in 102 Old Castle Road, Flat 0/1, Cathcart, Glasgow, G44 5TF, G44 — £119,000 • 1 bed • 1 bath • 495 ft²
1 bedroom flat for sale in Corsewall Street, Coatbridge, Lanarkshire, ML5 — £75,000 • 1 bed • 1 bath • 607 ft²


























































