**Standout Features:**
- Spacious semi-detached home with four bedrooms and two bathrooms
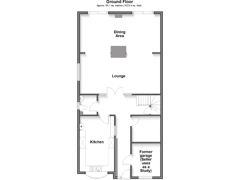
- Dedicated ground floor office, perfect for remote work or study
- Generous living areas including a cozy lounge with a classic fireplace and a separate kitchen ready for your personal touch
- Peaceful rear garden ideal for entertaining or relaxing in summer
- Large driveway offering off-street parking
- Chain-free sale for a smoother transaction
- Close proximity to a lovely park for daily nature walks
Nestled in the picturesque village of Bean, this semi-detached house offers a charming blend of comfort and potential. Boasting four bedrooms, including a master with an en-suite, this property is ideal for families seeking both space and tranquility. The dedicated ground floor office room is perfect for work-from-home arrangements, while the spacious living room provides a warm atmosphere thanks to an original fireplace. A generous kitchen/diner awaits your creative renovation, allowing you to craft your dream culinary space.
The peaceful rear garden is perfect for entertaining guests or unwinding after a long day, complemented by the convenience of off-street parking on the large driveway. Located next to a delightful park, you’ll enjoy effortless access to green space for leisurely strolls. While the property displays some dated decor and renovation needs, it presents a fantastic opportunity for those looking to add their personal touch and increase value. This home is situated in an aspiring urban area, making it not only a wonderful living space but also a strategic investment.
Don't miss your chance on this chain-free opportunity in a desirable location. Families, investors, and first-time buyers alike will see the immense value and potential this lovely home offers!



















































































