Low-price, low-maintenance base near North Walsham and the Norfolk coast.
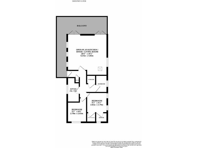
Three-bedroom park home, approx. 631 sq ft
A compact three-bedroom park home offering open-plan living and a wrap-around deck, ideal for someone seeking a low-maintenance base close to North Walsham. The bright living space flows to decking via double doors, and the kitchen island with built-in cupboards gives practical workspace for everyday cooking and entertaining. The main bedroom includes an en-suite and walk-in wardrobe; two further bedrooms provide flexible sleeping or home-office options.
Buyers should note this is a leasehold home with a holiday-let restriction, sold at a low asking price to reflect tenure limits. The seller’s details state a ground rent of £6,000 per year and an average service charge of around £3,000 — both significant ongoing costs that affect affordability. The property is small (approximately 631 sq ft), so it suits downsizers or those wanting a compact second home rather than full-time family living.
Practical benefits include two to three allocated parking spaces, mains services connected, fast broadband and excellent mobile signal. The Meadows sits within Alder Country Park with communal green spaces and easy access to North Walsham amenities and the Norfolk coast. Note local factors such as above-average crime levels and higher area deprivation; verify lease terms and running costs by solicitors before committing.
2 bedroom park home for sale in Bacton Road, Alder Country Park, NR28 — £70,000 • 2 bed • 2 bath • 757 ft²
2 bedroom park home for sale in Bacton Road, North Walsham, NR28 — £165,000 • 2 bed • 2 bath • 758 ft²
2 bedroom park home for sale in Alder Country Park, Bacton Road, NR28 — £50,000 • 2 bed • 2 bath • 805 ft²
2 bedroom park home for sale in Alder Country Park, Norfolk, NR28 — £100,000 • 2 bed • 2 bath • 618 ft²
2 bedroom park home for sale in Bacton Road, Alder Country Park, NR28 — £40,000 • 2 bed • 2 bath • 652 ft²
2 bedroom park home for sale in Bacton Road, North Walsham, NR28 — £120,000 • 2 bed • 2 bath • 864 ft²


















































































