Contemporary family home on a large plot, close to good local schools.
Open-plan kitchen/diner with French doors to garden
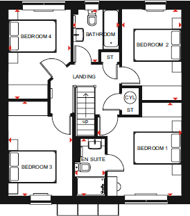
This four-bedroom detached new-build offers a contemporary, family-focused layout with an open-plan kitchen/diner and French doors that bring garden light into the ground floor. The main bedroom includes an en suite and there is a separate lounge, utility room and integral garage for practical family living. The finish appears modern and low-maintenance, suitable for buyers wanting a move-in-ready home.
Space is compact: the house totals around 897 sq ft and provides only one full bathroom plus an en suite, so households with multiple children or visitors should consider bathroom availability. Although the plot is described as very large for the development, the internal floor area is small compared with many four-bedroom homes, so storage and room sizes are modest.
Practical issues to note include slow broadband in the area and an above-average local crime rate; these are factual local-area considerations for commuting, remote working and security. The property sits within a suburban development facing landscaped open space, close to well-regarded primary schools, which will appeal to families seeking community amenities and outdoor space.
Overall this house suits buyers seeking a modern, low-upkeep family home on a sizeable plot who prioritise location and contemporary layout over generous internal floor area. It may also suit investors looking for new-build rental stock in a predominately residential development, though limited bathroom provision could affect rental flexibility.
4 bedroom detached house for sale in Bawtry Road,
Harworth,
South Yorkshire,
DN11 9HA, DN11 — £302,000 • 4 bed • 1 bath • 942 ft²
4 bedroom detached house for sale in Bawtry Road,
Harworth,
South Yorkshire,
DN11 9HA, DN11 — £300,000 • 4 bed • 1 bath • 891 ft²
4 bedroom detached house for sale in Bawtry Road,
Harworth,
South Yorkshire,
DN11 9HA, DN11 — £310,000 • 4 bed • 1 bath • 942 ft²
4 bedroom detached house for sale in Chestnut Road
Langold
S81 9RS, S81 — £314,995 • 4 bed • 1 bath • 976 ft²
4 bedroom detached house for sale in Warning Tongue Lane,
Branton,
Doncaster,
DN3 3QU, DN3 — £345,000 • 4 bed • 1 bath • 365 ft²
4 bedroom detached house for sale in Bawtry Road,
Bessacarr,
Doncaster,
DN4 — £315,000 • 4 bed • 1 bath • 833 ft²






























































