Proven holiday income and barn conversion potential beside Bow Creek and countryside.
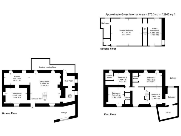
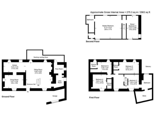
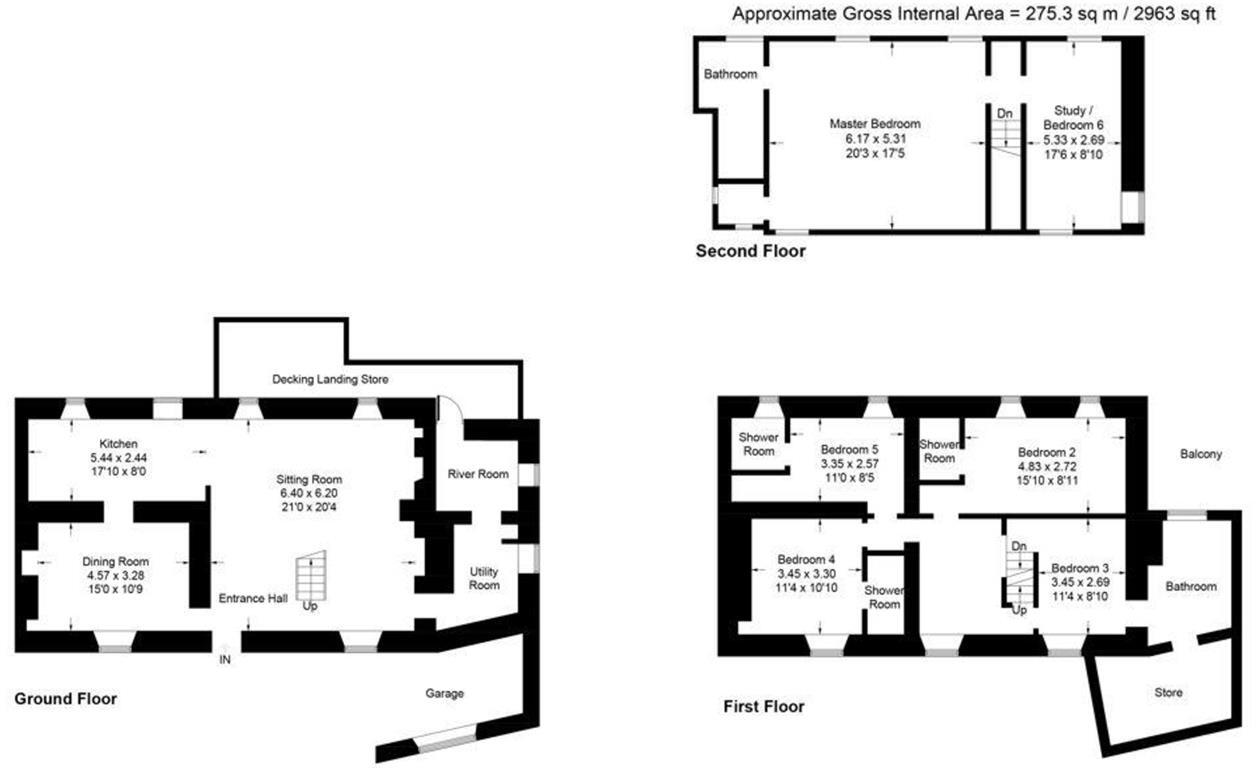
Six bedrooms with five ensuite bathrooms, modernised and spacious interiors
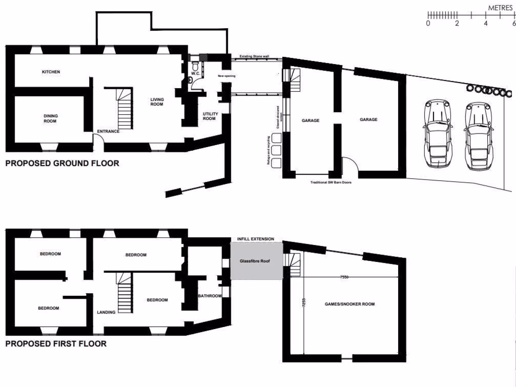
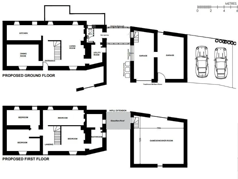
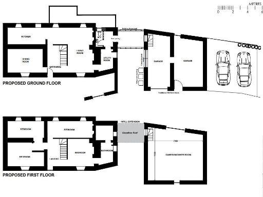
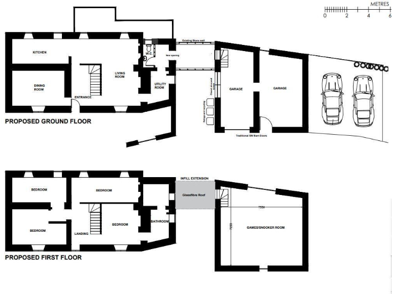
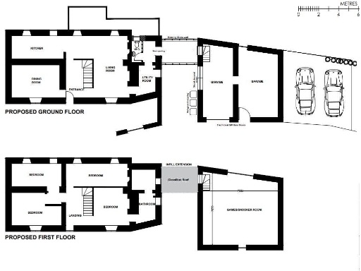
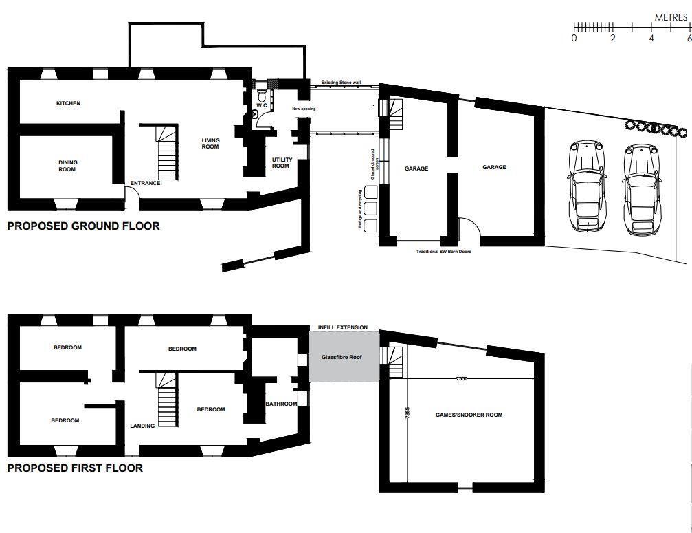
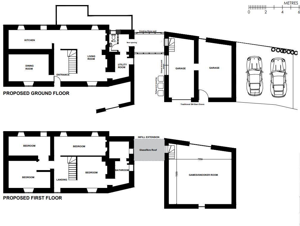
Set on the banks of Bow Creek in Tuckenhay, The Old Bakehouse is a newly renovated six-bedroom terraced home with direct water frontage and elevated creek views. The property is presented to a high standard throughout, with open-plan living, exposed timbers, modern fitted kitchen, five ensuite bathrooms and useful utility space. It includes parking for 5–6 cars, an EV charging point and a detached stone barn with planning permission to convert to two garages and a games room (ref 3163/23/FUL).
This house currently operates as an established Airbnb, producing a strong proven income (circa £60–70k pa when fully let) while owners retain weeks for personal use. For an investor the property combines immediate revenue with further upside from the barn conversion and flexibility as a large family home. The layout and fittings support short-term let appeal: multiple en suites, waterside balconies and boat davits for small craft.
Material drawbacks are clear and should be considered: the site sits in a high flood-risk zone. An automated flood management system with three sump pumps has been installed, and the vendors state no history of flooding, but insurance and long-term flood risk must be assessed. Broadband speeds are slow and mobile signal is average; heating is oil-fired with underfloor heating, and Council Tax is Band G (expensive).
Overall this is a rare waterside opportunity for a buyer seeking proven holiday-let income, a lifestyle home with significant character, or a small development project with planning in place for the barn. The property suits purchasers comfortable managing tidal risk and rural service limitations, and who value the location’s AONB setting and excellent access to Totnes and Dartmouth.
3 bedroom semi-detached house for sale in Bow Creek, Tuckenhay, Totnes, TQ9 — £350,000 • 3 bed • 1 bath • 953 ft²
2 bedroom flat for sale in The Quay, Tuckenhay, Totnes, TQ9 — £350,000 • 2 bed • 1 bath • 1480 ft²
3 bedroom detached house for sale in Tuckenhay, Totnes, TQ9 — £1,400,000 • 3 bed • 2 bath • 2153 ft²
7 bedroom detached house for sale in Lower Washbourne Barton, Totnes, Devon, TQ9 — £1,400,000 • 7 bed • 5 bath • 7845 ft²
3 bedroom bungalow for sale in Tuckenhay, Totnes, TQ9 — £450,000 • 3 bed • 1 bath • 1158 ft²
5 bedroom house for sale in Cragside, Kingswear, Devon, TQ6 — £700,000 • 5 bed • 3 bath • 2152 ft²






































































































































































