**Standout Features:**
- Modern duplex penthouse in the desirable Ingrave House
- Panoramic views of London from a spacious wrap-around terrace
- Impressive kitchen with built-in Bosch appliances and granite worktops
- Air conditioning and underfloor heating for year-round comfort
- Secure undercroft parking and access to a communal roof terrace
- Low council tax and leasehold with 245 years remaining
**Potential Concerns:**
- Service charge of approximately £1,400 annually
- Average broadband speeds
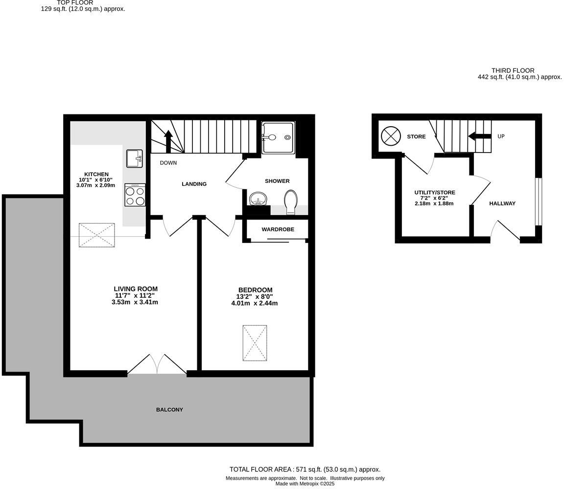
This chic, one-bedroom duplex penthouse in the heart of Brentwood offers a unique blend of modern living and urban convenience. Enjoy breathtaking views of the London skyline from your wrap-around terrace, perfect for unwinding after a busy day. The stylish living area and well-appointed kitchen with built-in Bosch appliances provide an ideal space for both relaxing and entertaining. The generous double bedroom features fitted wardrobes and is complemented by a contemporary shower room.
With a secure entrance, allocated parking, and access to a stunning communal roof terrace, this property checks all the boxes for city living at its best. Perfectly situated, it's just a short stroll from Brentwood Station and High Street shopping. While there is a moderate annual service charge and average broadband speeds, this apartment's spectacular features and leasehold potential make it a must-see. Take the opportunity to own your slice of Brentwood's charm before it's gone!







































































