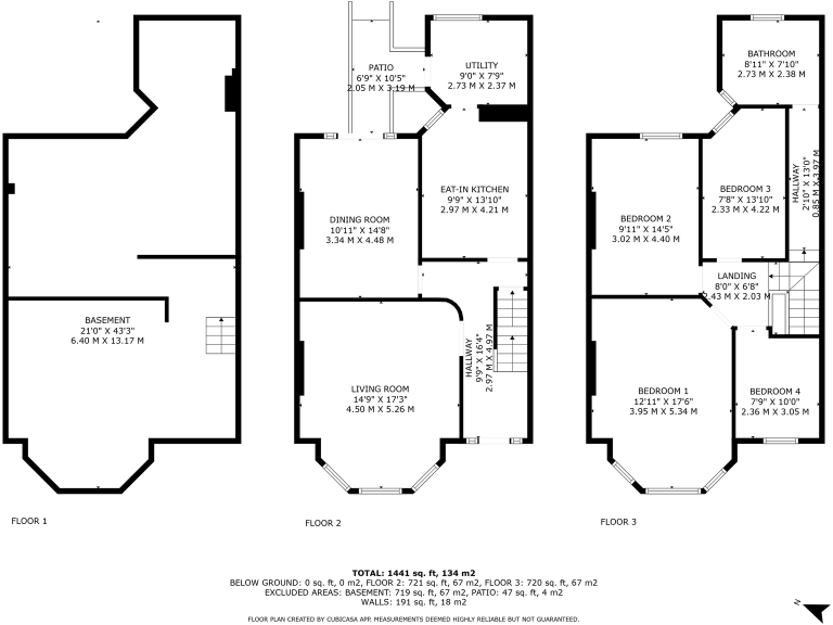
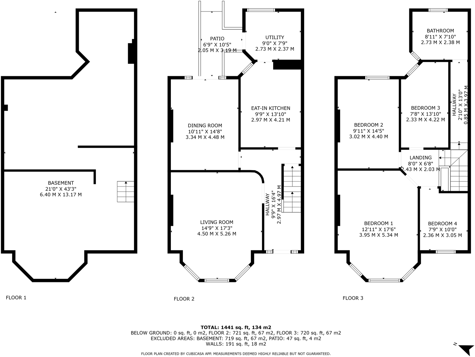
- Four bedrooms with generous principal rooms and period features
- Full-width cellar and loft potential to expand subject to consents
- Extensive east-facing rear garden; room for annexe or garden room
- Requires comprehensive renovation and modernisation throughout
- Single family bathroom only; likely need for additional bathrooms
- Solid brick walls (likely uninsulated) — energy upgrade opportunity
- Council tax band above average; local crime rate above average
- Freehold in a sought-after Muswell Hill location near outstanding schools
A substantial Victorian semi detached house in Muswell Hill offering four bedrooms, generous reception rooms and an extensive east-facing rear garden. The property retains attractive period features such as bay windows, cornicing and decorative woodwork, and includes a full-width cellar and potential for loft and basement conversions (subject to planning). Sold freehold and positioned close to outstanding primary schools, parks, woodland and local shops, it will suit buyers wanting space and scope in a convenient North London location.
The house is a renovation project: it needs updating throughout and presents opportunity to extend to the rear, convert the cellar and loft and significantly increase internal floor area and value. Accommodation currently comprises two reception rooms, eat-in kitchen, utility, four bedrooms and one family bathroom. Double glazing is present, heating is mains gas boiler and radiators, and walls are solid brick (likely without insulation).
Practical considerations are clear and important: there is only one bathroom, the property requires refurbishment to modern standards, council tax banding is above average and the local area records above-average crime. For families and buyers seeking a long-term project, the combination of size, garden, school catchments and scope for extension make this an attractive canvass to create a much larger, contemporary family home.
This home is best for purchasers prepared for renovation work or a staged development. With excellent transport links, fast broadband and nearby green spaces including Coldfall Wood and Alexandra Park, it balances city access with leafy surroundings — provided you factor in conversion costs, permissions and ongoing maintenance.



















































































