### Standout Features:
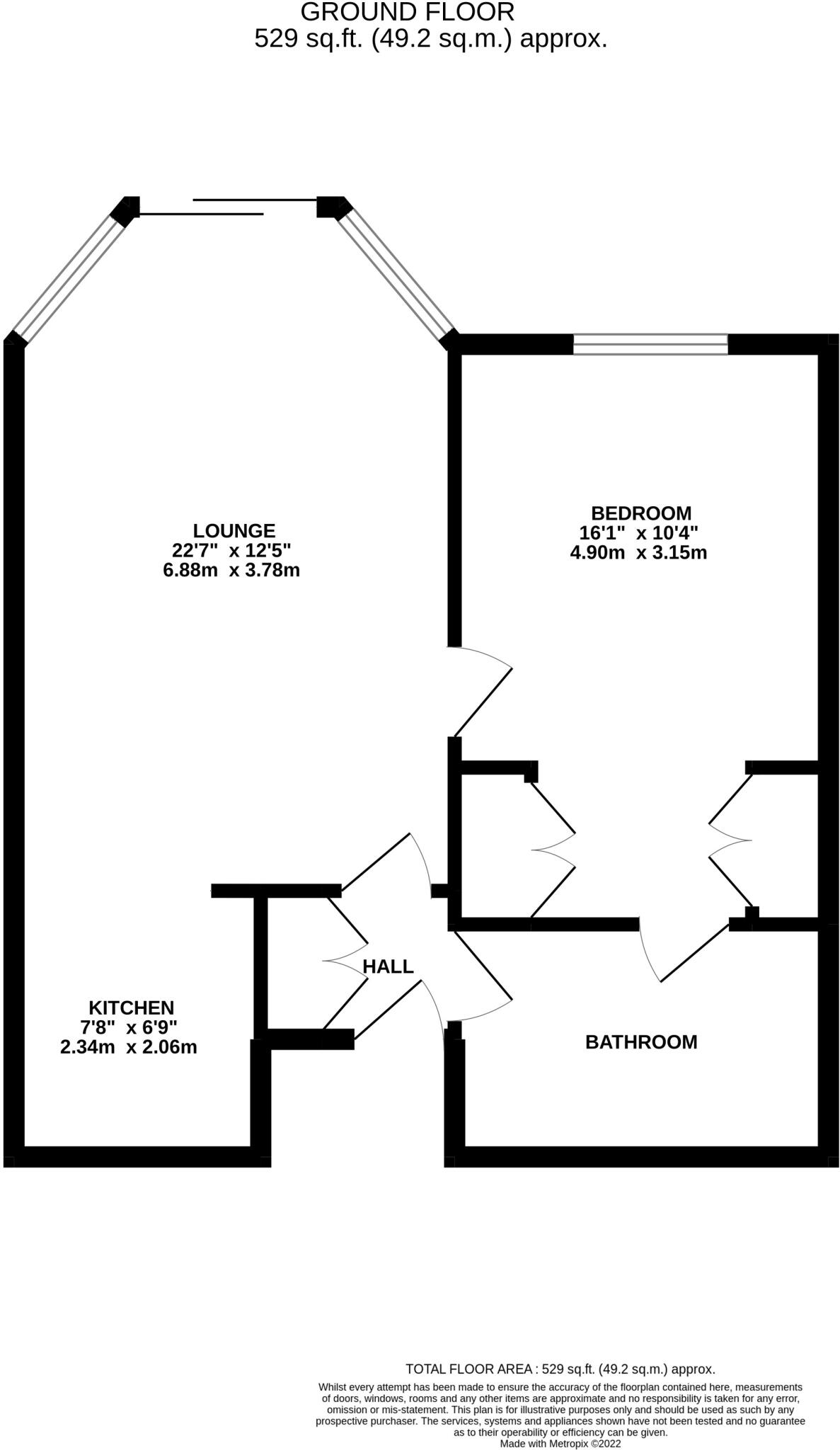
- Newly renovated ground floor apartment in a retirement complex
- One spacious bedroom with ample storage (two double wardrobes)
- Open plan lounge with modern kitchen and integrated appliances
- Patio doors leading to private outdoor seating area
- Access to extensive, beautifully landscaped communal gardens (almost 4 acres)
- 24-hour reception/security service for peace of mind
- Social events and communal areas including a licensed bar
- Leasehold with 165 years remaining
### Summary Description:
Discover the perfect retirement retreat at Westley Court, a tranquil ground floor apartment spanning 527 sq.ft. This newly renovated one-bedroom residence combines comfort with a modern flair, featuring an inviting open plan lounge and kitchen equipped with contemporary appliances, including a built-in fridge freezer. Natural light floods the spacious living area, which seamlessly transitions to your own private patio overlooking the stunning 4-acre grounds.
The beautifully maintained communal spaces foster a strong sense of community, offering opportunities to engage in social events or simply enjoy the serene, landscaped gardens complete with seating areas for relaxation. The property also boasts excellent mobile signal and average broadband speeds, ensuring connectivity while you unwind. However, prospective buyers should note the above-average service charge of £4467.12 per year. With a leasehold term remaining until December 2188, this charming home is an ideal choice for those seeking a peaceful yet engaging retirement lifestyle. Don’t miss out on this rare opportunity to embrace comfort and community; your tranquil haven awaits!



























































































