Compact modern flat near Wembley Central ideal for first-time buyers.
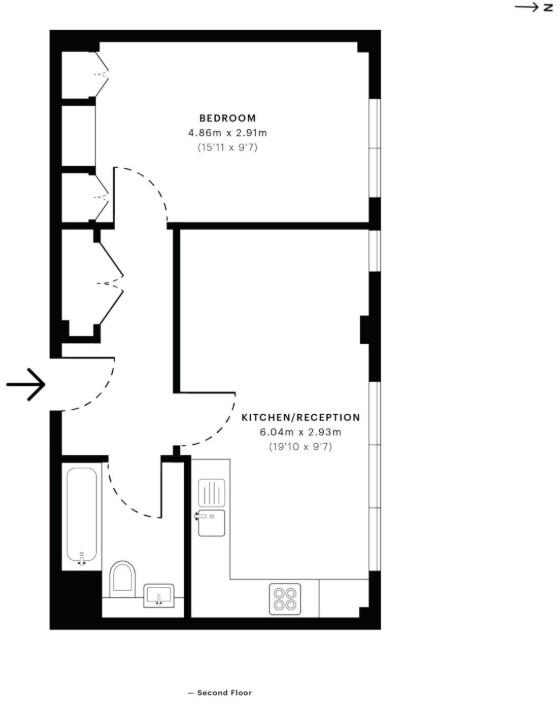
Second-floor one-bedroom apartment, 342 sqft small footprint
This compact one-bedroom apartment in Ramsey House offers a modern, low-maintenance home a few seconds from Wembley Central Station. The open-plan kitchen/reception, contemporary bathroom and built-in storage make efficient use of the small 342 sqft footprint, ideal for a first-time buyer seeking strong connectivity and easy living.
Practical details are favourable: a long 110-year lease, EPC B rating, mains gas community heating, and off-street parking available to rent within the development. Local amenities and several well-rated schools are within walking distance, and the station gives fast access into central London.
Buyers should note some material considerations: the property is small and suits single occupants or couples rather than families; broadband speeds are reported as very slow; the surrounding area records high crime levels; and annual service charges are approximately £2,150 with ground rent of £150. Parking is available but for rent rather than included.
Overall, this is a straightforward, contemporary flat that offers excellent transport links and long-term security via a lengthy lease. It will suit a first-time buyer seeking convenience or an investor targeting rental demand close to transport, provided they accept the compact size and address the broadband and local-area issues.
1 bedroom flat for sale in Central Square, Wembley, HA9 — £290,000 • 1 bed • 1 bath • 478 ft²
1 bedroom flat for sale in High Road, Wembley, HA9 — £250,000 • 1 bed • 1 bath • 440 ft²
1 bedroom flat for sale in High Road, Wembley, Middlesex, HA9 — £325,000 • 1 bed • 1 bath • 551 ft²
1 bedroom apartment for sale in Alliance Close, Wembley, HA0 — £265,000 • 1 bed • 1 bath • 432 ft²
1 bedroom flat for sale in Wembley Park, HA9 — £270,000 • 1 bed • 1 bath • 442 ft²
1 bedroom maisonette for sale in Thurlow Gardens, Wembley, HA0 — £300,000 • 1 bed • 1 bath • 724 ft²














































