Compact, low-maintenance one-bed with parking near Chester retail and transport..
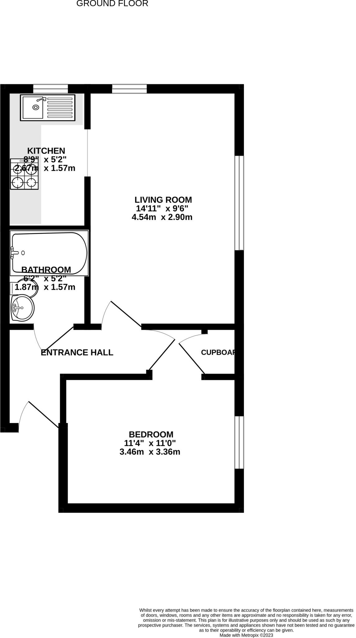
- One-bedroom second-floor apartment, approximately 345 sq ft
- Allocated off-street parking included
- Close walking distance to Greyhound retail park and city centre
- Leasehold with 88 years remaining (important for mortgages)
- Annual service charge £1,166.47; no ground rent
- Electric storage heaters — higher running costs than gas
- Small layout best for single occupants, couples, or rental use
- Double glazing installed post-2002; low flood risk
A compact one-bedroom apartment presented as a straightforward investment or a low-maintenance home for a single occupant or couple. Positioned on the second floor of a purpose-built block, it benefits from allocated off-street parking and well-kept communal grounds. The location is practical — a short walk to the Greyhound retail park and within reasonable distance of Chester city centre, public transport and local amenities.
The flat is efficient in layout with a small living room, fitted kitchen, double bedroom and bathroom within approximately 345 sq ft. Practical features include double glazing (installed post-2002), electric storage heating and excellent mobile signal with fast broadband — useful for renters or home workers. Flooding risk is low and the wider area is relatively affluent, supporting steady demand for rental properties.
Important practical details for investors: the property is leasehold with 88 years remaining and an annual service charge of £1,166.47. There is no ground rent. The electric storage heaters can be more costly to run than gas central heating, and the apartment’s small size limits tenant profiles and rental yield ceiling. The block was constructed in the 1980s and may need periodic communal maintenance in future.
Overall, this is a straightforward, low-upkeep asset close to retail and transport hubs — suitable for investors seeking a city-centre rental or owner-occupiers wanting a compact, affordable base in Chester. Lease length and service costs should be checked against mortgage and investment criteria before purchase.
1 bedroom apartment for sale in Walls Avenue, Chester, CH1 — £122,950 • 1 bed • 1 bath
2 bedroom apartment for sale in Wetherby Close, Chester, CH1 — £125,000 • 2 bed • 1 bath • 437 ft²
1 bedroom apartment for sale in Volunteer Street, Chester, Cheshire, CH1 — £150,000 • 1 bed • 1 bath • 601 ft²
2 bedroom flat for sale in Wetherby Close, Chester, Cheshire, CH1 — £110,000 • 2 bed • 1 bath • 495 ft²
1 bedroom flat for sale in Saddlery Way, Chester, Cheshire, CH1 — £110,000 • 1 bed • 1 bath • 489 ft²
1 bedroom apartment for sale in Large apartment, city road., CH1 — £160,000 • 1 bed • 1 bath • 560 ft²










































