Immaculately presented four-bed Victorian townhouse close to Manor Park and Aldershot station..
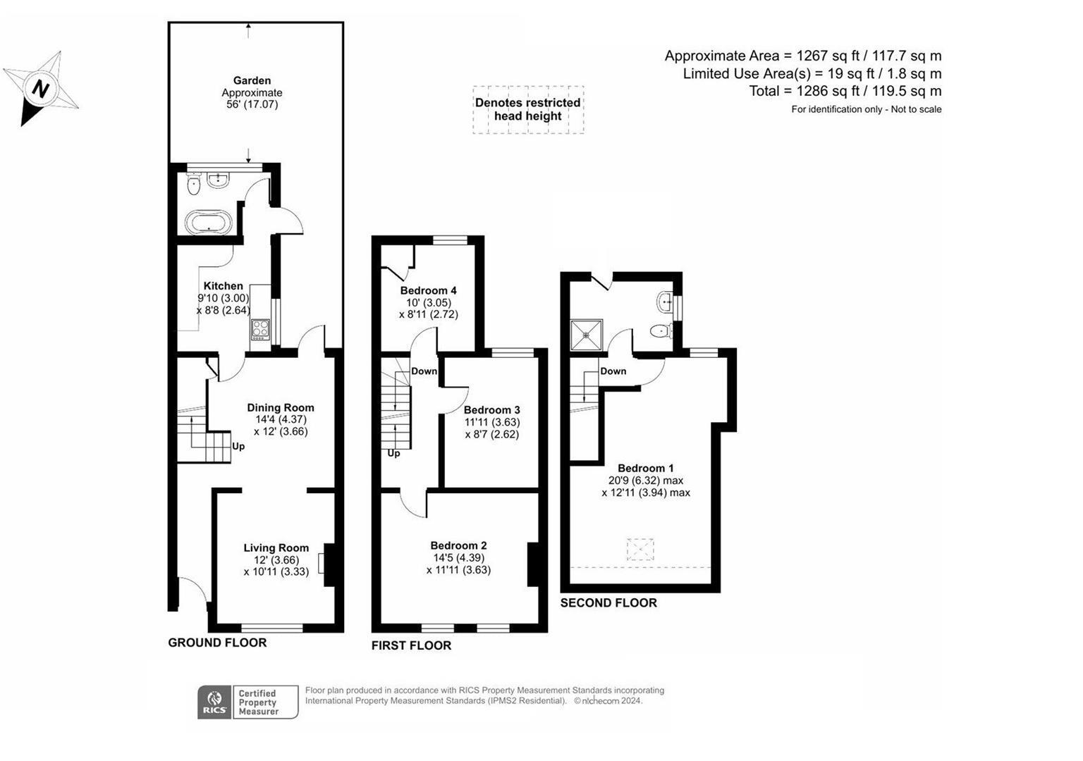
- Four bedrooms across three floors, two family bathrooms
- Well-presented interior; open-plan living/dining layout
- Small, private rear garden with patio and pergola
- Freehold; mains gas boiler and double glazing
- EPC Rating D (63); potential to improve insulation
- Compact room sizes typical of period terraced stock
- On-street parking only; no off-street parking
- Local crime rate recorded as above average
This three-storey Victorian mid-terrace offers well-presented family accommodation across 1,267 sq ft with four bedrooms and two bathrooms. Arranged over ground, first and second floors, the house combines period features—sash-style windows and a feature fireplace—with contemporary finishes in the kitchen and bathrooms. The rear garden is neatly maintained and includes a patio and pergola for outdoor entertaining, while a gated front forecourt adds kerb appeal.
Practical advantages include freehold tenure, mains gas central heating with a boiler and radiators, double glazing, fast broadband and excellent mobile signal. The location is very convenient: a short walk to Manor Park and under a mile to Aldershot railway station, with on-street parking available for residents. Local schools rated Good to Outstanding and a broad range of shops and amenities are within easy reach.
Be aware of a few factual points: the EPC is D (63), the plot is small and room sizes are generally compact, typical of urban terraced stock. The property is built from solid brick (no assumed cavity insulation) and dates from the early 20th century, so buyers should consider potential costs if insulating or upgrading the fabric. Crime in the immediate area is recorded as above average, which some buyers may wish to investigate further.
Overall this is a turnkey, characterful family home for buyers seeking a town-centre location with easy transport links, or investors looking for a well-presented rental in a busy commuter town. Minor energy-efficiency or insulation works could add value and reduce running costs over time.
3 bedroom terraced house for sale in High Street, Aldershot, Hampshire, GU12 — £325,000 • 3 bed • 1 bath • 940 ft²
3 bedroom end of terrace house for sale in St. Michaels Road, Aldershot, Hampshire, GU12 — £460,000 • 3 bed • 2 bath • 1435 ft²
3 bedroom terraced house for sale in Ash Road, Aldershot, Hampshire, GU12 — £370,000 • 3 bed • 1 bath • 921 ft²
4 bedroom terraced house for sale in Cambridge Road, Aldershot, GU11 — £475,000 • 4 bed • 2 bath • 2025 ft²
3 bedroom end of terrace house for sale in Oak Way, Aldershot, Hampshire, GU12 — £420,000 • 3 bed • 2 bath • 825 ft²
3 bedroom terraced house for sale in Church Lane East, Aldershot, Hampshire, GU11 — £390,000 • 3 bed • 1 bath • 1075 ft²


































































