**Standout Features:**
- New build, offering a fresh and modern aesthetic
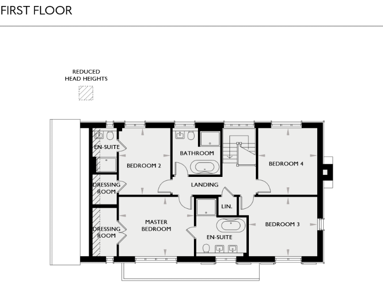
- Large 2002 sqft layout with 4 bedrooms and en-suites
- High-spec open-plan kitchen/diner with quartz worktops and NEFF appliances
- Energy-efficient Samsung air source heat pump and underfloor heating
- Integral garage, EV car charger, and landscaped garden with patio
- 10-year structural warranty and 2 years aftercare from an award-winning developer
**Potential Concerns:**
- Broadband speeds may be slow
- Local mobile signal rated as average
Discover the exquisite Bishop home at Arundel Gate, blending modern luxury with a tranquil rural setting. This stunning detached property boasts a spacious 2002 sqft layout that includes 4 spacious bedrooms, each with its own en-suite, perfect for family comfort and privacy. The open-plan kitchen/diner serves as the heart of the home, equipped with top-of-the-line NEFF appliances and striking quartz worktops, ideal for culinary enthusiasts and entertaining.
This new build features large dual-aspect windows that flood the home with natural light, complemented by a seamless transition to a beautifully landscaped garden, complete with a sandstone patio—a perfect backdrop for outdoor living. Energy efficiency is a highlight, with an air source heat pump and underfloor heating keeping your living spaces cozy.
Located in the historic and picturesque market town of Arundel, residents enjoy access to charming shops, cafés, and beautiful riverside walks. A quick drive also connects you to gorgeous beaches and the vibrant city life of Chichester. With exceptional local schools nearby and low crime rates, this home is ideal for families seeking a peaceful community.
Don’t miss out on this rare opportunity to secure a brand-new home. The unique layout and luxurious finishes promise a comfortable lifestyle in a desirable location. Explore tailored buying incentives today and envision your future in this dream home!
4 bedroom detached house for sale in Ford Road,
Arundel,
BN18 9HN, BN18 — £1,000,000 • 4 bed • 4 bath • 2002 ft²
4 bedroom detached house for sale in Ford Road,
Arundel,
BN18 9HN, BN18 — £915,000 • 4 bed • 4 bath • 1827 ft²
4 bedroom detached house for sale in Ford Road,
Arundel,
BN18 9HN, BN18 — £1,250,000 • 4 bed • 1 bath • 2496 ft²
4 bedroom detached house for sale in Ford Road,
Arundel,
BN18 9HN, BN18 — £1,307,500 • 4 bed • 1 bath • 2496 ft²
3 bedroom detached house for sale in Ford Road,
Arundel,
BN18 9HN, BN18 — £715,000 • 3 bed • 4 bath • 1317 ft²
2 bedroom terraced house for sale in Ford Road,
Arundel,
BN18 9HN, BN18 — £495,000 • 2 bed • 2 bath • 859 ft²






































































































































