Newly renovated apartment with patio, allocated parking and fast links to Reading town centre.
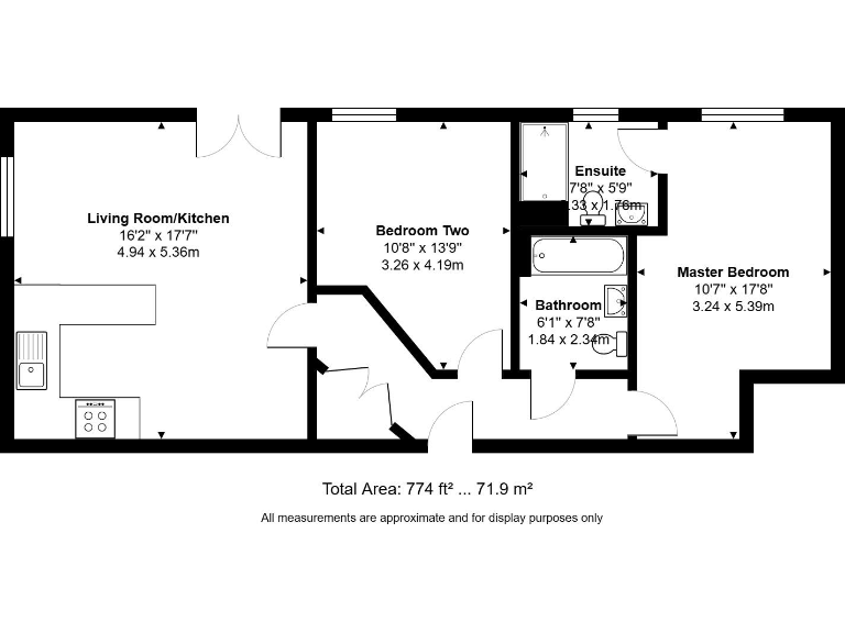
- Two double bedrooms, master with ensuite
- Newly renovated; contemporary open-plan kitchen and living
- Patio leading to communal gardens, plenty of natural light
- Allocated off-street parking included
- Gas central heating; fast broadband and excellent mobile signal
- Leasehold with c.118 years remaining
- Service charge ~£1,524pa and ground rent ~£275pa (ongoing costs)
- Located near regular bus routes and local schools
This ground-floor, two-bedroom apartment is newly renovated and presented to a high standard throughout. The open-plan living space features a modern fitted kitchen with integrated appliances, flowing to a patio and communal gardens—ideal for relaxed evenings or easy entertaining. Both bedrooms are double-sized; the master has an ensuite and there's an additional family bathroom.
Practical features include allocated off-street parking, gas central heating with boiler and radiators, shutter blinds and fast broadband. The development sits in a very affluent part of RG30 with low crime, regular bus routes to Reading town centre and a range of local schools of varying Ofsted ratings.
Important tenure and cost facts: the property is leasehold with about 118 years remaining. Annual service charge is approximately £1,524 and ground rent about £275. These ongoing costs should be factored into affordability calculations.
Overall this apartment offers a move-in-ready option for a first-time buyer or investor seeking a modern, low-maintenance home close to transport and amenities. Buyers wanting a freehold house or no service charges should look elsewhere.
 2 bedroom apartment for sale in Elvian Close, Reading, RG30 — £270,000 • 2 bed • 2 bath • 849 ft²
 2 bedroom apartment for sale in Elvian Close, Reading, RG30 — £270,000 • 2 bed • 2 bath • 849 ft² 2 bedroom apartment for sale in Ruskin, Henley Road, Caversham, Reading, RG4 — £225,000 • 2 bed • 1 bath • 631 ft²
 2 bedroom apartment for sale in Ruskin, Henley Road, Caversham, Reading, RG4 — £225,000 • 2 bed • 1 bath • 631 ft² 2 bedroom apartment for sale in Carol Grove, Arborfield Green, Reading, RG2 — £300,000 • 2 bed • 2 bath • 708 ft²
 2 bedroom apartment for sale in Carol Grove, Arborfield Green, Reading, RG2 — £300,000 • 2 bed • 2 bath • 708 ft² 2 bedroom apartment for sale in Southcote Lane, Reading, Berkshire, RG30 — £260,000 • 2 bed • 1 bath • 713 ft²
 2 bedroom apartment for sale in Southcote Lane, Reading, Berkshire, RG30 — £260,000 • 2 bed • 1 bath • 713 ft² 1 bedroom apartment for sale in Southcote Lane, Reading, Berkshire, RG30 — £200,000 • 1 bed • 1 bath • 517 ft²
 1 bedroom apartment for sale in Southcote Lane, Reading, Berkshire, RG30 — £200,000 • 1 bed • 1 bath • 517 ft² 2 bedroom apartment for sale in 3 Ruhemann Street, Reading, RG30 — £276,000 • 2 bed • 2 bath • 704 ft²
 2 bedroom apartment for sale in 3 Ruhemann Street, Reading, RG30 — £276,000 • 2 bed • 2 bath • 704 ft²






















































