Three-bedroom period terraced home with garden and clear renovation potential.
Victorian terraced with period bay window and high ceilings
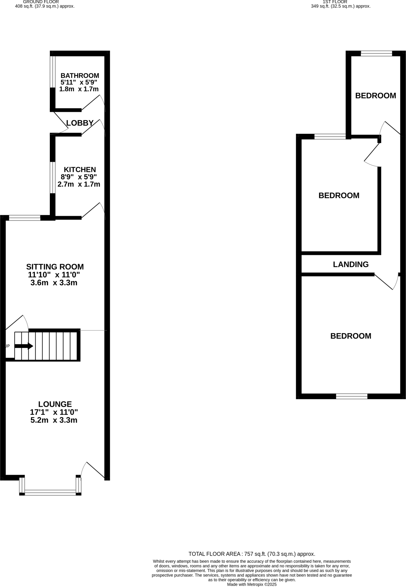
A compact Victorian terraced house offering clear renovation potential in Bordesley Green. The property retains period features such as a bay window and high ceilings in the living room, and provides three bedrooms, two reception rooms and a family shower room. A rear courtyard and garden give outdoor space uncommon for this size.
This home suits a first-time buyer or a hands-on investor looking for value-add. The footprint is small (approximately 757 sq ft) so internal layouts are best for purchasers comfortable with modest room sizes. Central heating and double glazing are in place, but the interior is dated and will require updating to unlock full value.
Location strengths include fast broadband, excellent mobile signal, close amenities (supermarkets, shops, cafés) and a cluster of nearby primary and secondary schools rated Good. The wider area shows higher-than-average crime levels and is in a very deprived area, which buyers should factor into affordability and resale considerations.
Important practical notes: tenure and council tax band are not provided, so buyers should confirm these before committing. The property is offered as a fixer-upper; expect renovation costs for modernisation rather than a move-in ready home.
3 bedroom terraced house for sale in Blakeland Street, Bordesley Green, Birmingham, B9 — £180,000 • 3 bed • 1 bath
3 bedroom terraced house for sale in Imperial Road, Birmingham, West Midlands, B9 — £170,000 • 3 bed • 1 bath
3 bedroom terraced house for sale in Charles Road, Small Heath, Birmingham, West Midlands, B9 — £180,000 • 3 bed • 1 bath • 760 ft²
3 bedroom terraced house for sale in Florence Road, Acocks Green, Birmingham, West Midlands, B27 — £240,000 • 3 bed • 1 bath • 1103 ft²
3 bedroom terraced house for sale in Wyrley Road, Birmingham, B6 — £130,000 • 3 bed • 1 bath
3 bedroom end of terrace house for sale in Belchers Lane, Birmingham, West Midlands, B9 — £265,000 • 3 bed • 1 bath • 969 ft²






















































































