Chain-free two-bedroom flat moments from Sandown beach — ideal holiday or starter home..
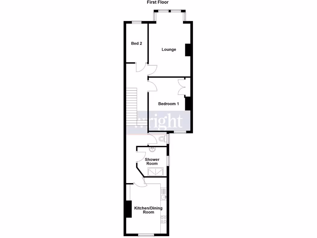
Private first-floor entrance and generous lounge with high ceilings
Short walk to Sandown town centre and sandy beach
Chain-free sale with a very long 715-year lease remaining
Gas central heating; UPVC double glazing (pre-2002)
No private garden; on-street parking only
Cavity walls likely uninsulated; insulation upgrade advised
Located in an ageing urban area with above-average crime levels
Compact second bedroom; best suited for single occupant or small family
Set just a short walk from Sandown’s sandy beach, this first-floor two-bedroom flat blends period character with convenient seaside living. High ceilings and a generous lounge create an inviting living space, while a separate kitchen/dining room gives flexibility for eating and entertaining. The private entrance adds independence often missing in flats.
Practical comforts include gas central heating and UPVC double glazing, and the long lease (715 years) removes common leasehold concerns. The property is offered chain free, making it straightforward to purchase as a full-time home, holiday bolthole or rental investment.
Buyers should note the property sits in an ageing urban area with above-average local crime and general area deprivation; on-street parking and no private garden mean outside space is limited. Some period fabric — cavity walls likely without insulation and glazing installed before 2002 — suggests mid-range refurbishment and insulation upgrades would enhance comfort and value.
Overall this flat offers immediate seaside appeal and solid potential for improvement. It will suit someone wanting a compact coastal home close to town amenities and the beach, or an investor seeking a manageable rental/holiday property with straightforward purchase terms.
2 bedroom ground floor flat for sale in Albion Road, Sandown, Isle Of Wight, PO36 — £145,000 • 2 bed • 2 bath • 609 ft²
2 bedroom flat for sale in High Street, SANDOWN, Isle of Wight, PO36 — £125,000 • 2 bed • 1 bath • 737 ft²
2 bedroom flat for sale in Short Walk To Beach * Sandown, PO36 — £180,000 • 2 bed • 1 bath • 872 ft²
2 bedroom flat for sale in Leed Street, SANDOWN, Isle of Wight, PO36 — £139,950 • 2 bed • 1 bath • 497 ft²
2 bedroom apartment for sale in Royal Crescent, Sandown, Isle Of Wight, PO36 — £145,000 • 2 bed • 1 bath • 574 ft²
2 bedroom end of terrace house for sale in Cross Street, Sandown, Isle of Wight, PO36 — £230,000 • 2 bed • 2 bath • 845 ft²


































