**Standout Features:**
- Newly built three-bedroom terraced house
- Located in a gated mews development of only six homes
- Exceptional standard finishes with a modern kitchen and luxurious bathrooms
- Private south-facing patio garden
- Just a 5-minute walk to Brighton Station
- Positioned in the vibrant Seven Dials neighborhood
**Potential Concerns:**
- Neighbors in a small community may impact privacy
- Broadband speeds are reported as very slow
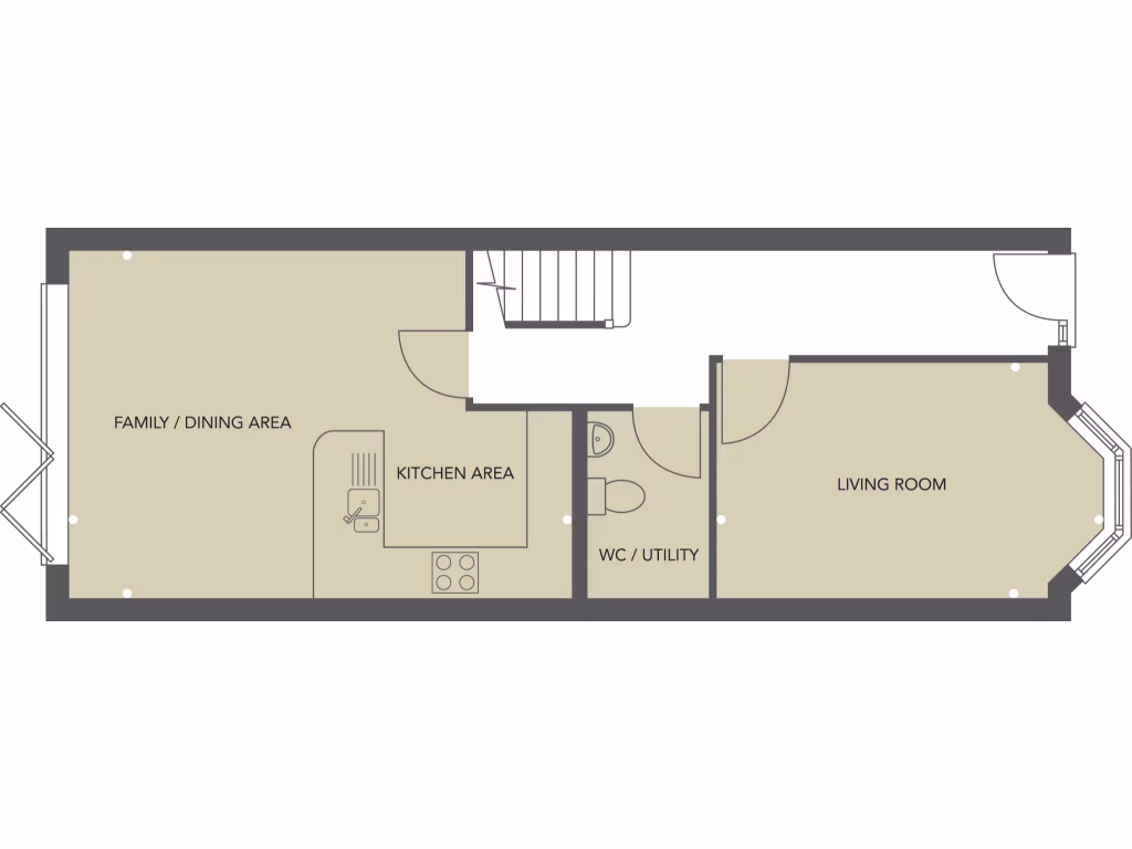
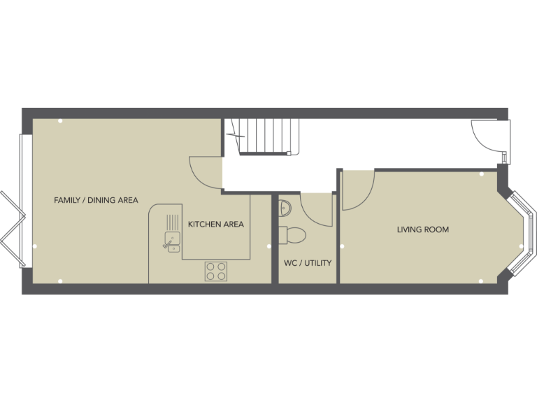
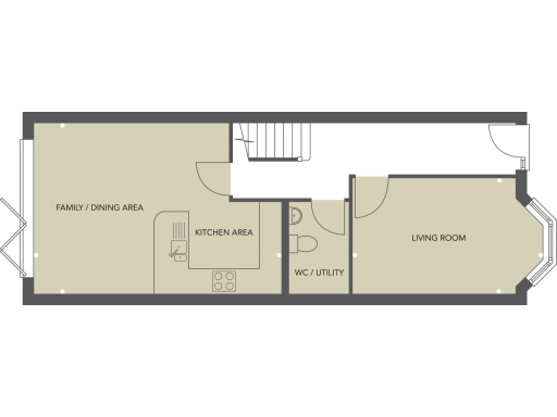
Unlock the potential of city living with this stunning three-bedroom home in the sought-after Seven Dials area of Brighton. Nestled in a tranquil gated mews, this elegant property combines modern comforts with traditional charm, featuring high-quality finishes such as Notle shaker-style kitchen units and opulent bathrooms adorned with Calacatta marble. The generous open-plan living space flows seamlessly to a private south-facing patio, creating an ideal environment for relaxation and entertaining.
With the bustling local community and a plethora of cafés, shops, and restaurants at your doorstep, you’ll enjoy vibrant city life just minutes from Brighton Station. The excellent transport links, including swift access to the A23 and M23, make for easy commuting. This delightful home is perfect for families or professionals seeking a harmonious blend of sophistication, comfort, and convenience. Don’t miss this rare opportunity to make Seven Dials your home – acts fast, as properties like this are truly a gem!
3 bedroom semi-detached house for sale in The Mews @ Howard Terrace, Brighton, East Sussex, BN1 — £700,000 • 3 bed • 1 bath • 914 ft²
3 bedroom terraced house for sale in Howard Terrace, Brighton, BN1 — £800,000 • 3 bed • 2 bath • 1248 ft²
2 bedroom apartment for sale in The Mews @ Howard Terrace, Brighton, BN1 — £475,000 • 2 bed • 2 bath • 732 ft²
3 bedroom semi-detached house for sale in Howard Terrace, Brighton, BN1 — £700,000 • 3 bed • 1 bath • 878 ft²
3 bedroom semi-detached house for sale in Marlborough Mews, Brighton, East Sussex, BN1 — £500,000 • 3 bed • 1 bath • 806 ft²
3 bedroom house for sale in Montpelier Street, Brighton, East Sussex, BN1 — £975,000 • 3 bed • 2 bath • 1199 ft²


























































































