Affordable, low-maintenance two-bed home ideal for first-time buyers and investors.
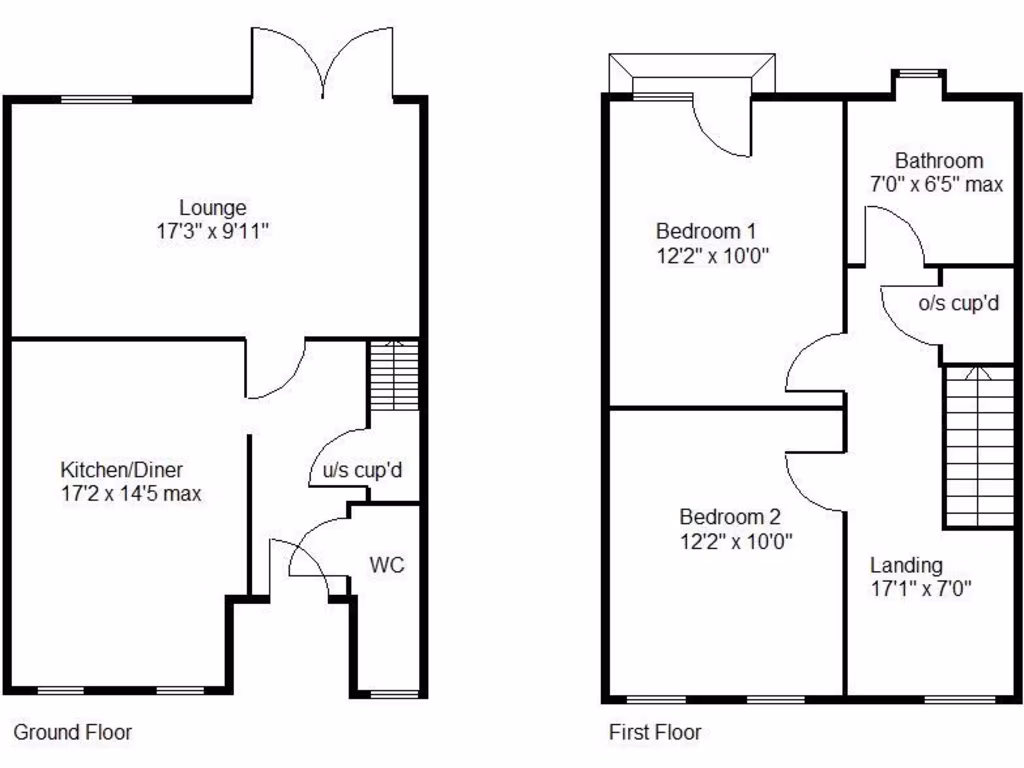
- Two large double bedrooms with generous first-floor landing
- Open-plan fitted kitchen/diner with integrated appliances
- Full-width rear lounge with French-style doors
- Off-street parking for two plus attached single garage
- Low-maintenance rear garden with artificial lawn and deck
- Solar panels and triple glazing improve energy efficiency
- Medium flood risk; may affect insurance and waterfront access
- Located in a very deprived area with above-average crime rates
A tidy two-bedroom end terrace on a modern development, offered freehold and ready for immediate occupation. The house benefits from a bright open-plan kitchen/diner, a full-width rear lounge, and two well-proportioned double bedrooms. Practical features include mains gas central heating, solar panels, and triple-glazed windows for improved efficiency.
Outside, the property suits a busy household: an easy-care rear garden with artificial lawn and deck, plus off-street parking for two vehicles and an attached single garage. The layout and low-maintenance exterior make this a straightforward choice for a first-time buyer or buy-to-let investor seeking reliable, modern accommodation.
Buyers should note some location and site limitations. The property sits in a very deprived area with above-average local crime statistics and a medium flood risk — factors that can affect insurance costs and long-term resale. The plot is small and the home is compact, so buyers needing generous outdoor space or larger rooms should look elsewhere.
Overall, this is an affordable, modern two-bedroom home with sensible running costs and strong convenience to local amenities and transport links. It will suit purchasers prioritising low-maintenance living and a manageable mortgage, provided they accept the neighbourhood and plot-size compromises.
3 bedroom semi-detached house for sale in Ancient Drive, Woodlands, Doncaster, DN6 — £210,000 • 3 bed • 2 bath • 785 ft²
2 bedroom town house for sale in Ansult Court, Bentley, Doncaster, DN5 — £140,000 • 2 bed • 1 bath • 518 ft²
3 bedroom semi-detached house for sale in Heartswood Road, Bentley, Doncaster, DN5 — £190,000 • 3 bed • 2 bath • 877 ft²
3 bedroom semi-detached house for sale in Heartswood Road, Doncaster, DN5 — £190,000 • 3 bed • 1 bath • 1026 ft²
3 bedroom end of terrace house for sale in Acacia Road, Cantley, Doncaster, DN4 — £180,000 • 3 bed • 1 bath • 780 ft²
2 bedroom house for sale in Fillies Avenue, Doncaster, DN4 — £160,000 • 2 bed • 2 bath • 538 ft²














































