### Standout Features:
- Recently constructed: Built in 2021
- Three spacious bedrooms
- Modern, turn-key condition
- Off-street parking for two cars
- Low crime rate in the area
- Shared ownership available (50% for £105,000)
- Access to good local schools
### Summary:
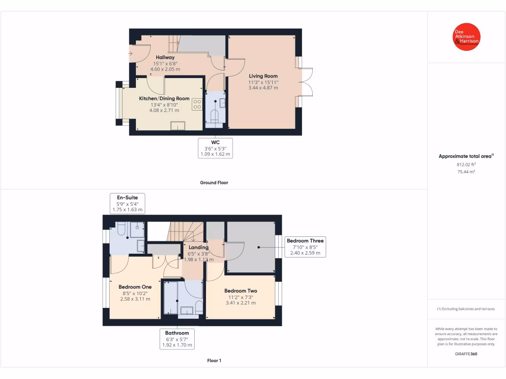
Discover this modern three-bedroom detached house located in the desirable new development in Driffield. Built in 2021, this property is presented in move-in ready condition and is a perfect opportunity for first-time buyers seeking an affordable family home with a shared ownership option. The well-appointed layout features a bright kitchen/diner with a large bay window, a cozy lounge with French doors leading to a secure north-facing garden, and a convenient cloakroom on the ground floor.
Upstairs, you’ll find a primary bedroom with an en-suite, two additional bedrooms, and a family bathroom—all finished to a high standard. The property also includes off-street parking for two vehicles and a manageable garden, ideal for outdoor enjoyment. With a low crime rate and proximity to local amenities, parks, and schools rated 'Good' by Ofsted, this location caters to families and professionals alike.
While the property is relatively new and well maintained, potential buyers should note the lease management fee of £25.61 per month and a monthly rent of £315 for the remaining 50% ownership. This unique offering won't last long—schedule your viewing today to secure your ideal home!
3 bedroom detached house for sale in Underwood Bank, Driffield, YO25 5BZ, YO25 — £210,000 • 3 bed • 2 bath • 812 ft²
3 bedroom terraced house for sale in Woodmansey Garth, Driffield, YO25 5GF, YO25 — £72,150 • 3 bed • 2 bath • 862 ft²
3 bedroom terraced house for sale in Woodmansey Garth, Driffield, YO25 5GF, YO25 — £185,000 • 3 bed • 2 bath • 804 ft²
4 bedroom detached house for sale in Woodmansey Garth, Driffield, East Riding of Yorkshire, YO25 — £250,000 • 4 bed • 2 bath • 1015 ft²
3 bedroom semi-detached house for sale in Clarke Drive, Driffield, YO25 5BW, YO25 — £76,000 • 3 bed • 1 bath • 770 ft²
2 bedroom end of terrace house for sale in Nalton Drive, Driffield, YO25 5GE, YO25 — £112,000 • 2 bed • 1 bath • 568 ft²


























































































