Contemporary three-bed home with large plot in quiet Isfield village.
Three bedrooms, three bathrooms in contemporary 2021 build
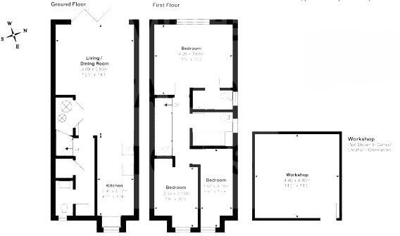
A modern three-bedroom end-terrace finished in 2021, this compact home sits on a large plot in the village of Isfield. The property offers contemporary open-plan living, a private rear garden with a steel-framed workshop, and off-street parking on a paved drive. Built to recent standards, it includes double glazing and an air-source heat pump for heating.
Internally the layout is multi-storey and efficiently arranged: an open-plan living/dining area with sliding doors to the garden, a modern kitchen, a downstairs cloakroom, a master bedroom with en-suite, two further bedrooms and a family bathroom. At around 671 sq ft the interior is small for a three-bedroom house, so rooms feel compact and storage is limited.
Energy is provided by electricity with an air-source heat pump and radiators; this is a low-carbon solution but the tariff is unspecified and running costs should be checked. The house presents well and needs only normal ongoing maintenance; buyers wanting more living space would need to consider reconfiguration or extensions (subject to planning). Located close to Uckfield and Lewes, the village offers good schools, countryside walks and low crime, with reasonable road and rail links nearby.
4 bedroom detached house for sale in Isfield, Uckfield, East Sussex, TN22 — £775,000 • 4 bed • 2 bath • 3383 ft²
2 bedroom semi-detached house for sale in Station Road, Isfield, TN22 — £440,000 • 2 bed • 2 bath • 1197 ft²
3 bedroom detached house for sale in Culpeper Close, Isfield, TN22 — £525,000 • 3 bed • 2 bath • 1055 ft²
2 bedroom semi-detached house for sale in Culpeper Close, Isfield, TN22 — £425,000 • 2 bed • 2 bath • 582 ft²
3 bedroom detached house for sale in Culpeper Close, Isfield, TN22 — £525,000 • 3 bed • 2 bath • 1058 ft²
3 bedroom detached house for sale in Horsted Lane, Isfield, Uckfield, East Sussex, TN22 — £625,000 • 3 bed • 1 bath • 1244 ft²






























































