**Standout Features:**
- Detached dormer bungalow in a popular coastal village
- Elevated position with potential landscape views
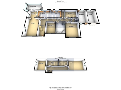
- Expansive layout: 5 bedrooms & 2 bathrooms
- Easily maintained gardens with ample off-street parking
- Planning permission granted for a two-storey garage extension
- Chain-free, immediate possession available
**Summary:**
Discover seaside living in this spacious detached dormer bungalow, perfectly positioned in the charming village of Morfa Nefyn. Boasting an impressive 3,197 square feet of living space, this home features five well-appointed bedrooms and two bathrooms, making it ideal for families or those seeking luxury in a laid-back environment. The main floor hosts a conservatory for relaxation, an inviting lounge, and a functional utility room, while the upper level provides additional privacy with extra rooms that can easily be transformed into living spaces.
Enjoy the benefits of easily maintained gardens and ample off-street parking—perfect for family gatherings or entertaining guests. With planning permission already in place to expand the garage, this property offers fantastic future potential. This serene retreat is conveniently located within walking distance of the beach and championship golf course, ensuring endless opportunities for recreation. Priced at £595,000, this unique — and chain-free — opportunity will not last long. Embrace the lifestyle you've always wanted in this delightful seaside home!
3 bedroom bungalow for sale in Lon Y Llwyn, Morfa Nefyn, Pwllheli, Gwynedd, LL53 — £385,000 • 3 bed • 2 bath • 2241 ft²
3 bedroom detached bungalow for sale in Barcyttun Estate, Morfa Nefyn, LL53 — £280,000 • 3 bed • 1 bath • 983 ft²
3 bedroom bungalow for sale in Barcyttun Estate, Morfa Nefyn, Pwllheli, Gwynedd, LL53 — £320,000 • 3 bed • 1 bath • 1325 ft²
3 bedroom bungalow for sale in Lon Uchaf, Morfa Nefyn, Pwllheli, Gwynedd, LL53 — £299,950 • 3 bed • 1 bath • 1373 ft²
5 bedroom detached house for sale in Lon Tyn Y Mur, Morfa Nefyn, Pwllheli, Gwynedd, LL53 — £495,000 • 5 bed • 2 bath • 2199 ft²
2 bedroom semi-detached house for sale in Morfa Nefyn, LL53 — £290,000 • 2 bed • 2 bath • 1205 ft²


































































































































