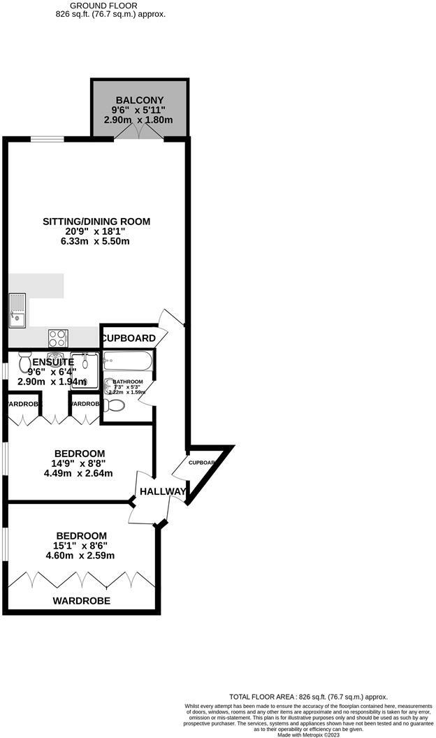
**Standout Features:**
- Exclusive development in a historic complex (former Terry’s chocolate factory)
- Open-plan kitchen/diner/living area with contemporary design
- South-facing balcony with stunning views of York Racecourse
- Principal bedroom with en suite shower room
- Two allocated parking spaces
- Ideal location near amenities, including vibrant Bishopthorpe Road
- Chain-free sale, ready for immediate occupation
Situated within an exclusive development, this well-maintained two-bedroom apartment offers modern living fused with historical charm. The bright, open-plan kitchen/diner/living area is perfect for entertaining, leading out to a private south-facing balcony that showcases beautiful views of York Racecourse. The contemporary fitted kitchen is equipped with integrated appliances and quartz worktops, ideal for culinary enthusiasts. Enjoy the convenience of two allocated parking spaces and a concierge service while being just a stroll away from the lively shops and eateries of Bishopthorpe Road, as well as the tranquil riverside walks.
This apartment, with its spacious layout, including a principal bedroom with en suite facilities plus a second double bedroom with fitted wardrobes, is perfect for families or investors looking for rental potential. With reasonable service charges and no onward chain, this property is a must-see for those seeking comfortable, city living. Don't miss the chance to own a piece of York's vibrant skyline!
2 bedroom apartment for sale in Bishopthorpe Road, York, North Yorkshire, YO23 — £465,000 • 2 bed • 2 bath • 919 ft²
1 bedroom apartment for sale in Bishopthorpe Road, York, North Yorkshire, YO23 — £250,000 • 1 bed • 1 bath • 607 ft²
2 bedroom duplex for sale in The Residence, Bishopthorpe Road, YO23 — £450,000 • 2 bed • 2 bath • 983 ft²
1 bedroom apartment for sale in The Residence, Bishopthorpe Road, York, YO23 — £220,000 • 1 bed • 1 bath • 526 ft²
1 bedroom apartment for sale in The Residence, Bishopthorpe Road, York, YO23 — £300,000 • 1 bed • 1 bath • 617 ft²
2 bedroom apartment for sale in Joseph Terry Grove, York, YO23 — £312,000 • 2 bed • 2 bath • 793 ft²


























































