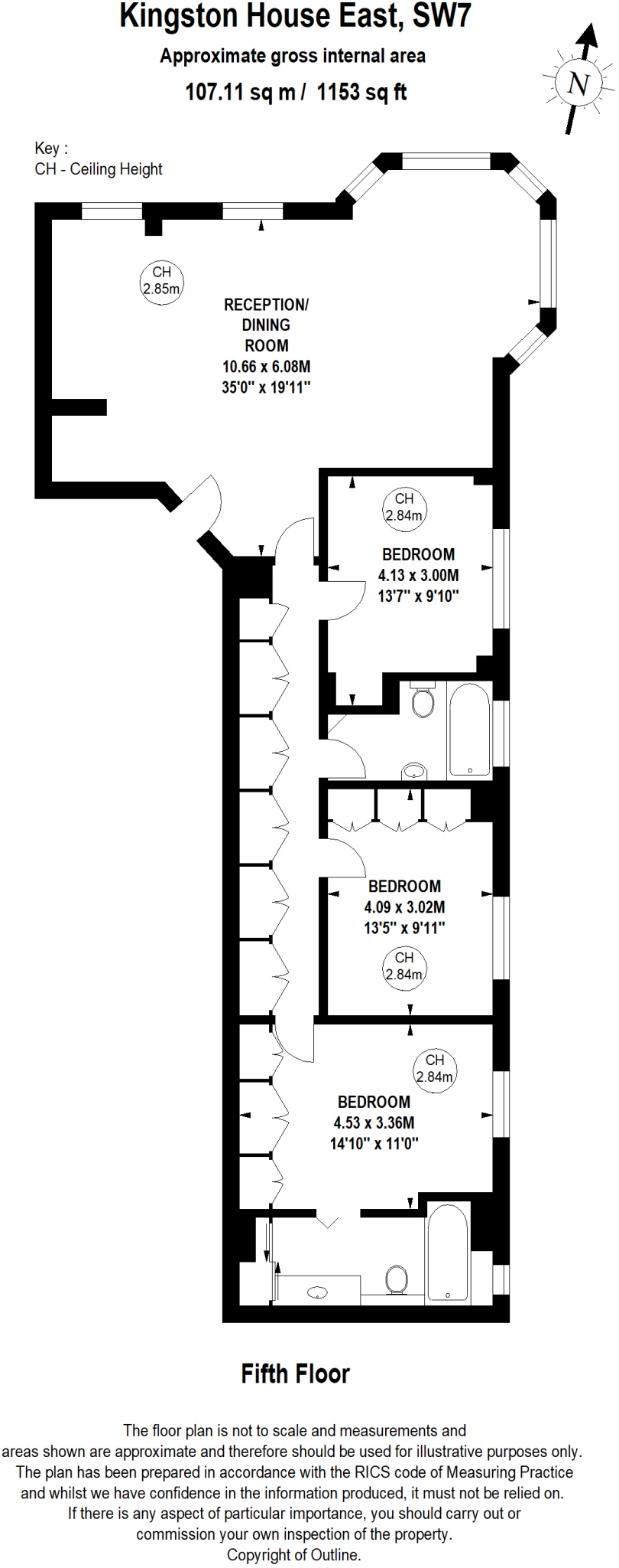
**Standout Features:**
- Share of freehold with 118 years remaining on the lease
- Expansive views over Hyde Park
- Spacious 1,200 sq ft, 5th-floor apartment
- Three double bedrooms, including a principal with ensuite bathroom
- Two additional bathrooms and a separate WC
- Bright reception room with classic Victorian features
- Access to beautiful communal gardens and a 24-hour porter service
- Basement storage unit for added convenience
**Potential Concerns:**
- Property located in an area with above-average crime rates
- Council tax is quite expensive, reflecting the affluent neighborhood
This elegant three-bedroom apartment in the heart of Knightsbridge offers an unparalleled urban lifestyle with breathtaking views over Hyde Park. Spanning over 1,200 sq ft, the residence boasts spacious and sunlit interiors, highlighted by a large reception room adorned with traditional Victorian features and expansive bay windows that invite natural light while providing serene park vistas. The well-designed layout includes a principal bedroom with an ensuite, two further double bedrooms, and two additional bathrooms—ideal for families or professionals seeking ample living space.
Residents benefit from a 24-hour porter service and easy access to meticulously maintained communal gardens, enhancing security and convenience. The property is perfectly positioned between Kensington and Knightsbridge, enveloped by renowned amenities and excellent schools, making it a top choice for families and investors alike. With above-average crime rates and high council tax, potential buyers should weigh the benefits of this prestigious location against its costs. Don't miss your chance to own a piece of this sought-after community—luxury living awaits!
3 bedroom apartment for sale in Knightsbridge, London, SW1X — £3,200,000 • 3 bed • 3 bath • 1296 ft²
2 bedroom flat for sale in Ennismore Gardens, LONDON, SW7 — £3,500,000 • 2 bed • 2 bath • 1384 ft²
3 bedroom apartment for sale in Kingston House East, SW7 — £2,300,000 • 3 bed • 2 bath • 1200 ft²
3 bedroom apartment for sale in Prince's Gate, London, SW7 — £2,950,000 • 3 bed • 3 bath • 1471 ft²
3 bedroom apartment for sale in Penthouse, Kingston House South, Knightsbridge SW7 — £3,750,000 • 3 bed • 2 bath • 1927 ft²
2 bedroom apartment for sale in Kingston House South, Ennismore Gardens SW7 — £3,500,000 • 2 bed • 3 bath • 1380 ft²






































