**Standout Features:**
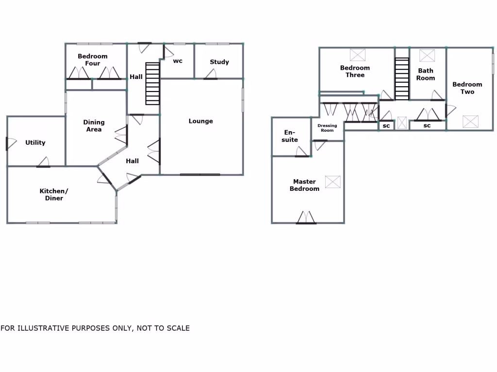
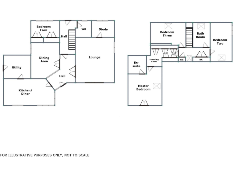
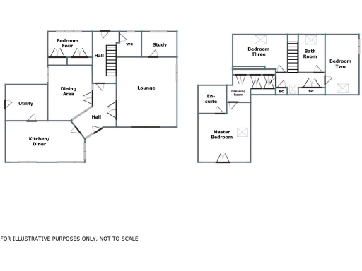
- Bespoke four-bedroom detached home
- Tranquil setting with panoramic greenbelt views
- Spacious living accommodation across approximately 4,349 sq ft
- Generous gardens with mature landscaping
- Approved planning for a single garage
- Access via a private shared driveway with ample parking
- Close to local amenities and excellent schooling
- Low crime area with fast broadband access
**Summary:**
Experience the charm of countryside living in this unique four-bedroom detached home, nestled in a serene setting overlooking picturesque greenbelt land. Peace and privacy abound, thanks to large wraparound gardens filled with mature trees and vibrant flower beds, perfect for family gatherings or tranquil retreats. The spacious interior features a dual-aspect lounge that opens onto the garden, an open-plan kitchen-diner suited for entertaining, and a versatile fourth bedroom that could serve as a home office.
This property presents an excellent opportunity for families looking to enjoy rural tranquility without sacrificing connectivity to village amenities. The approved planning for a single garage adds further potential to this already expansive home. With ample parking via a private shared driveway and just a short walk to local shops and schools, this distinct residence promises both comfort and convenience. Don’t miss the chance to call this tranquil retreat your home!
4 bedroom detached house for sale in Cloister Walk, Whittington, WS14 — £1,100,000 • 4 bed • 3 bath • 2500 ft²
4 bedroom detached house for sale in Blithbury, Rugeley, WS15 — £700,000 • 4 bed • 2 bath • 2594 ft²
2 bedroom end of terrace house for sale in Church Street, Whittington, WS14 — £395,000 • 2 bed • 1 bath • 1217 ft²
4 bedroom character property for sale in Fox Lane, Lichfield, WS13 — £900,000 • 4 bed • 3 bath • 2925 ft²
3 bedroom detached house for sale in Shropshire Brook Road, Rugeley, Staffordshire, WS15 — £369,995 • 3 bed • 2 bath • 768 ft²
4 bedroom detached house for sale in Baroque House, Upper Landywood Lane, WS6 7AX, WS6 — £750,000 • 4 bed • 3 bath • 1347 ft²


































































































































































































