Large mixed-use freehold in W8, ideal for investor refurbishment or rental income..
Freehold building with retail plus three self-contained flats
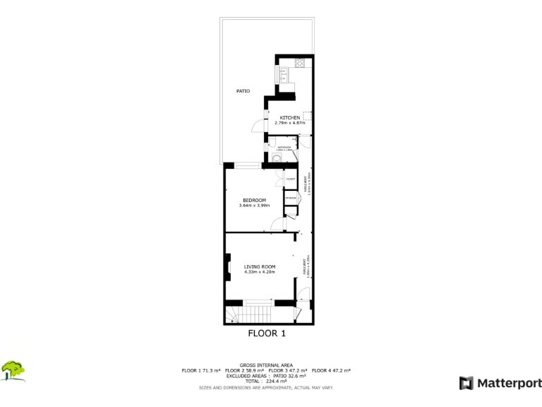
An unusually large freehold building in prime Kensington, offered for the first time in over 75 years. The property includes a ground-floor retail unit, three self-contained flats across upper and lower floors, and a private lower-ground terrace — all within a substantial 2,415 sqft footprint. Its W8 postcode places Kensington Olympia, Earl's Court and High Street Kensington within easy reach, providing strong letting and retail demand.
This is a clear investment and redevelopment opportunity: mixed commercial/residential income potential now, with scope to reconfigure or refurbish to increase value. Construction predates 1900, with solid brick walls (assumed uninsulated) and traditional gas-fired boiler heating — sensible upgrades (insulation, glazing, services) would improve comfort and EPC performance and could materially boost rental or resale values.
Buyers should note important local and property facts: on-street permit parking only, a small plot size, and a higher local crime rate. The area is inner-city cosmopolitan with multi-ethnic professional workers; some parts of the neighbourhood show deprivation indicators. The building will require modernisation work to maximise returns, and any redevelopment should factor in planning constraints typical of period central-London terraces.
For an investor or owner-occupier seeking a rare freehold in Kensington, this property offers scale, location and flexibility. It is most suitable for a buyer prepared to manage refurbishment and regulatory steps to unlock the asset’s full potential.
 15 bedroom house for sale in Prince Of Wales Terrace, Kensington, W8 — £8,300,000 • 15 bed • 1 bath
 15 bedroom house for sale in Prince Of Wales Terrace, Kensington, W8 — £8,300,000 • 15 bed • 1 bath 15 bedroom block of apartments for sale in Cromwell Road, London, SW5 — £7,000,000 • 15 bed • 1 bath • 7456 ft²
 15 bedroom block of apartments for sale in Cromwell Road, London, SW5 — £7,000,000 • 15 bed • 1 bath • 7456 ft² 15 bedroom block of apartments for sale in 5 Prince Of Wales Terrace, Kensington, Hyde Park, London W8 5PG, W8 — £8,300,000 • 15 bed • 1 bath • 5749 ft²
 15 bedroom block of apartments for sale in 5 Prince Of Wales Terrace, Kensington, Hyde Park, London W8 5PG, W8 — £8,300,000 • 15 bed • 1 bath • 5749 ft² 7 bedroom house for sale in Avonmore Road, West Kensington, W14 — £4,250,000 • 7 bed • 6 bath
 7 bedroom house for sale in Avonmore Road, West Kensington, W14 — £4,250,000 • 7 bed • 6 bath Commercial property for sale in 5 Prince Of Wales Terrace, Kensington, Hyde Park, London W8 5PG, W8 — £8,300,000 • 15 bed • 1 bath • 5749 ft²
 Commercial property for sale in 5 Prince Of Wales Terrace, Kensington, Hyde Park, London W8 5PG, W8 — £8,300,000 • 15 bed • 1 bath • 5749 ft² 15 bedroom terraced house for sale in Cromwell Road, Kensington, London, SW5 — £7,000,000 • 15 bed • 1 bath • 7456 ft²
 15 bedroom terraced house for sale in Cromwell Road, Kensington, London, SW5 — £7,000,000 • 15 bed • 1 bath • 7456 ft²






























































































