Contemporary 2-bed end terrace with garage, parking and west-facing garden — ready to move in.
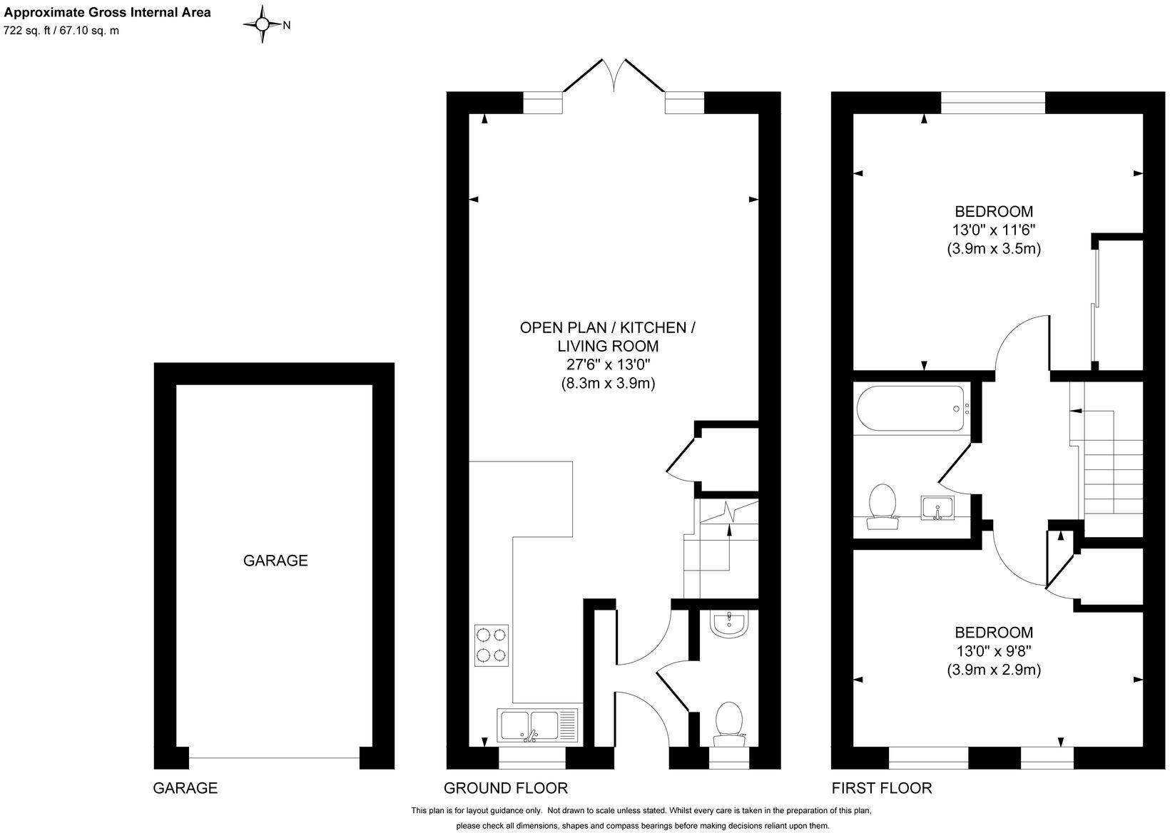
Two double bedrooms, bathroom plus ground-floor cloakroom
Light, modern and ready to move into, this two-double-bedroom end-of-terrace was built around 2016 and offers efficient, well-planned accommodation across two floors. Neutral decor throughout and a fitted kitchen with a full range of appliances make it easy to settle in. The sitting room opens directly to a fully enclosed west-facing rear garden, ideal for afternoon sun and simple entertaining.
Practical for first-time buyers or a small family, the house includes a garage (leased, located beneath No. 24) plus two parking spaces immediately in front and additional allocated parking for one to two cars. The property sits on a tidy cul-de-sac close to the hospital and local amenities, in a very low-crime, affluent neighbourhood with fast broadband and excellent mobile signal.
Buyers should note a modest annual estate charge of £260 for communal maintenance and play areas, and that the garage is leasehold rather than included freehold. The plot is small, with limited private outside space beyond the 33' x 13' west-facing garden. EPC rating B and mains gas central heating provide reasonable running costs and performance.
Overall this home offers contemporary, low-maintenance living with off-street parking and good local services. It suits first-time buyers or couples seeking a ready-to-move-in property with sensible running costs, but anyone requiring substantial outdoor space or a freehold garage should verify arrangements before viewing.
3 bedroom end of terrace house for sale in Colwell Gardens, Haywards Heath, RH16 — £425,000 • 3 bed • 2 bath • 1139 ft²
3 bedroom town house for sale in Cedar Avenue, Haywards Heath, RH16 — £385,000 • 3 bed • 2 bath • 1107 ft²
2 bedroom flat for sale in Funnell Drive, Haywards Heath, RH17 — £285,000 • 2 bed • 1 bath • 611 ft²
4 bedroom town house for sale in Virginia Drive, Haywards Heath, RH16 — £500,000 • 4 bed • 2 bath • 1197 ft²
3 bedroom house for sale in Pullman Avenue, Haywards Heath, RH16 — £575,000 • 3 bed • 2 bath • 1106 ft²
3 bedroom semi-detached house for sale in Ridgeway, Haywards Heath, West Sussex, RH17 — £450,000 • 3 bed • 2 bath • 841 ft²














































































