Ideal affordable step-on to homeownership in a well-connected Ash suburb.
60% shared ownership option from £234,000 (rent £342.27pcm)
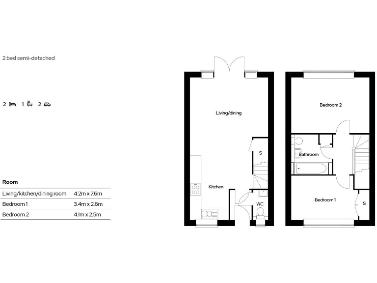
A practical modern starter home in Ash, offered as a shared-ownership 60% share from £234,000. Built in 2019, the two-bedroom semi-detached house has a bright open-plan living, dining and kitchen area with rear patio doors leading to an enclosed garden — a straightforward layout that suits first-time buyers, small families or downsizers.
The property comes with allocated off-street parking, mains gas central heating and fast broadband in a low-crime, well-connected suburb. Local schools, shops and green spaces are nearby, and road and rail links (A331/A31/M3 and local stations) make commuting practical.
Important practical points are made clear: this is a leasehold shared-ownership home (60% share example) with an estimated rent of £342.27pcm and a service charge around £54.68pcm. The footprint is modest (about 549 sq ft), so storage and living space are compact. Eligibility criteria and annual reviews of rent/service charges apply.
Overall this is a low-maintenance, modern home offering an affordable route onto the property ladder, but buyers should accept the shared-ownership structure, ongoing rent/service costs, and the smaller internal space before viewing.
2 bedroom maisonette for sale in Vyne Walk, Ash, Aldershot, Surrey, GU12 — £157,500 • 2 bed • 1 bath • 693 ft²
2 bedroom flat for sale in Hareshill, Featherfall Road, Crookham Village, Fleet, GU51 — £104,375 • 2 bed • 1 bath • 600 ft²
3 bedroom semi-detached house for sale in Penrose Gardens, Ash Vale, Guildford, Surrey, GU12 — £500,000 • 3 bed • 2 bath • 1042 ft²
2 bedroom flat for sale in Hareshill, Featherfall Road, Crookham Village, Fleet, GU51 — £33,000 • 2 bed • 1 bath • 584 ft²
2 bedroom flat for sale in Burnt Common Lane,
Ripley,
GU236HD, GU23 — £116,375 • 2 bed • 1 bath • 557 ft²
2 bedroom flat for sale in Wingate Court, Aldershot, Hampshire, GU11 — £97,500 • 2 bed • 1 bath • 645 ft²


















































