ME13 9AL - 3 bed victorian village family home in The Street, ME13 9AL

View on Property Piper

3 bedroom semi-detached house for sale in The Street, Boughton-Under-Blean, Faversham, ME13

Summary - 162 THE STREET BOUGHTON UNDER BLEAN FAVERSHAM ME13 9AL

3 bed 2 bath Semi-Detached

Spacious three-bedroom property with large garden and excellent commuter links.
Three double bedrooms across three floors
Large established rear garden with summerhouse and greenhouse
Cellar room providing substantial storage space
Triple glazing fitted to improve thermal performance
Solid brick walls assumed without insulation — upgrade recommended
Heating partly by room heaters; mains gas supply present
Walking distance to village school, shops, and countryside walks
Area classified as deprived; council tax noted as low
A substantial Victorian three-bedroom semi-detached home at the heart of Boughton-Under-Blean, laid out over three floors and offering generous living space and original period features. The lounge opens via French doors to a courtyard and flows to a large, established rear garden with sunken patio, greenhouse and summerhouse — a rare outdoor asset for village living.

Practical living is supported by a cellar for storage, a conservatory used as extra reception space, shaker-style kitchen cupboards and a useful utility room with butler sink. The property benefits from triple glazing, mains gas supply and fast broadband, making it suitable for modern family life and commuters who need reliable connectivity.

Buyers should note this is a solid-brick, pre-1900 construction with no built-in wall insulation assumed; heating currently relies on a mix of mains gas and room heaters, so there is potential for energy-efficiency upgrades. Some internal décor is dated and will require updating to meet contemporary standards.

Positioned on the main street within walking distance of the village primary school, shops and country walks, this freehold home suits families seeking village community and commuters using nearby transport links. The house offers clear renovation potential to increase comfort and long-term value, balanced against the cost of insulation and heating improvements.

Property Details

Brochure Descriptions

Image Descriptions

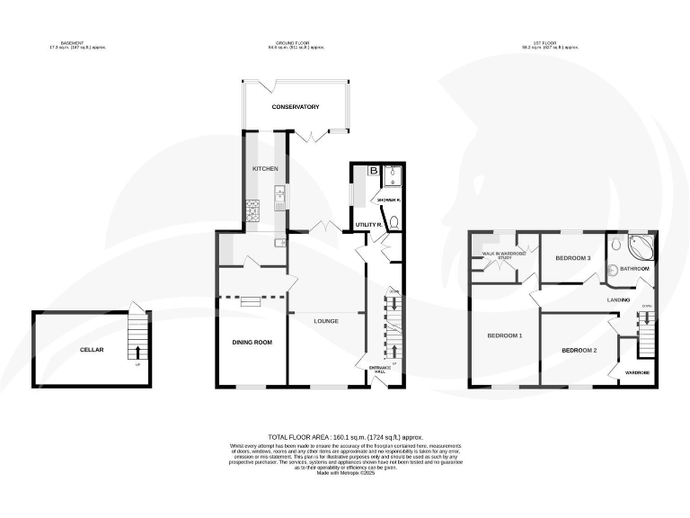
Floorplan Description

Rooms

Textual Property Features

Target Audience

AI Tags

Detected Visual Features

EPC Details

Nearby Schools

Nearest Bars And Restaurants

,,,,}

Nearest General Shops

,,}

Nearest Grocery shops

,,}

Nearest Supermarkets

,,}

Nearest Religious buildings

,,}

Nearest Medical buildings

,,,}

Nearest Leisure Facilities

,,,,}

Nearest Tourist attractions

,,}

Nearest Train stations

,,,,}

Nearest Bus stations and stops

,,,,}

Nearest Hotels

,,}

Tags

Local Market Stats

AirBnB Data

Similar Properties

Meta

High Res Images

Compatible Images

Low res Images

Thumbnails

Raw Images

High Res Floorplan Images

Compatible Floorplan Images

Low res Floorplan Images

FloorplanImages Thumbnail

Raw Floorplan Images